Info
R

Robert Rechenauer Architekten

Hans-Sachs-Straße 6  80469 München  Telefon 089 236856‑0
info@rechenauer-architekten.de
1 ⁄ 10 2 ⁄ 10 3 ⁄ 10 4 ⁄ 10 5 ⁄ 10 6 ⁄ 10 7 ⁄ 10 8 ⁄ 10 9 ⁄ 10 10 ⁄ 10

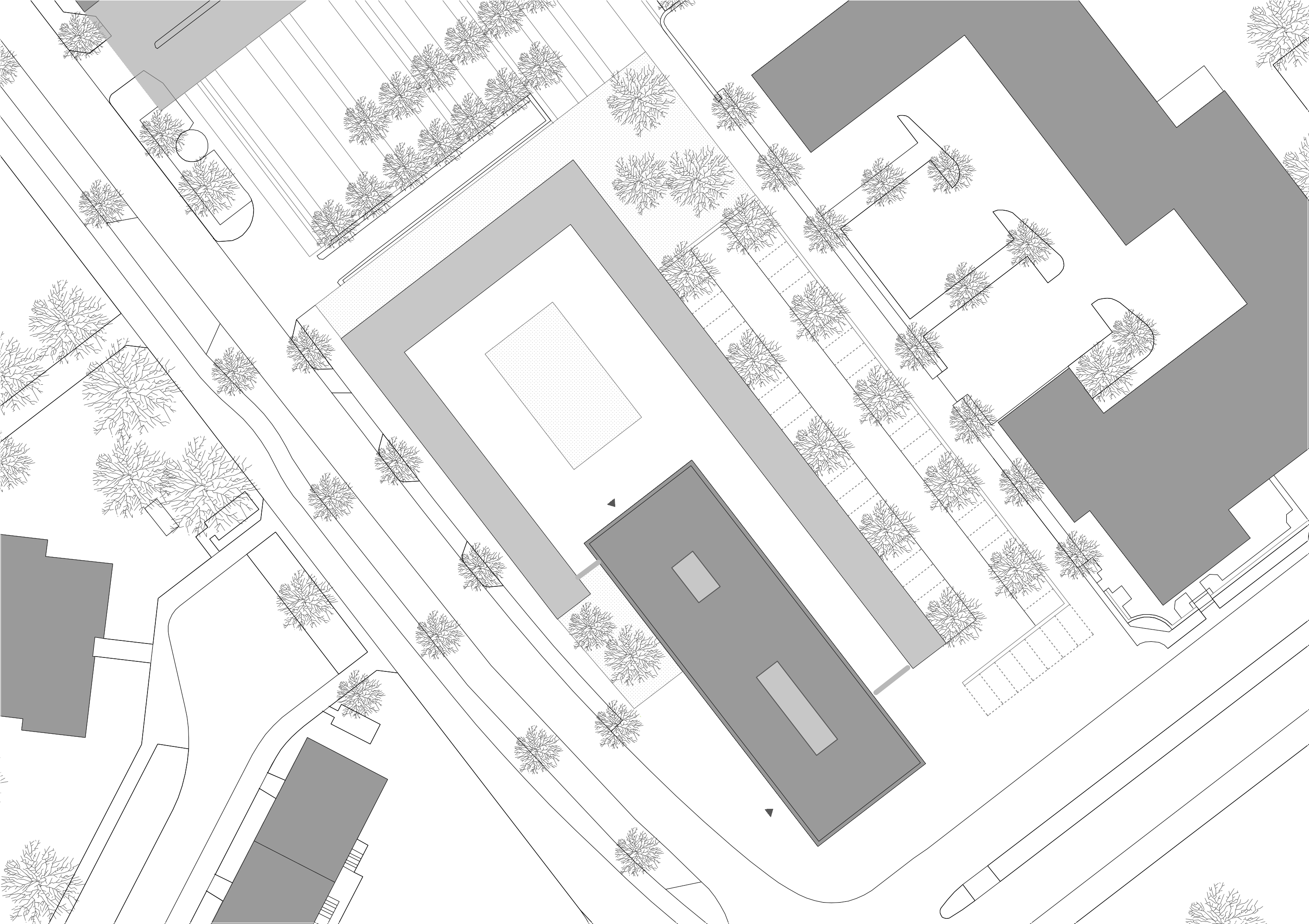
Bayerische Landespolizei Nürnberg
Wettbewerb 2009

Drei eingeschossige Gebäudeflügel definieren den Polizeihof und bilden mit dem dreigeschossigen Inspektionsgebäude ein geschlossenes Ensemble. Der weiß geschlämmte Ziegelbau steht für Schutz und Zuverlässigkeit, die offen gestaltete Eingangssituation für Transparenz und Bürgernähe.

+

Die Bebaung entwickelt sich entlang der Oppelner Straße. Am Kopf des Gebäudes befindet sich an der Kreuzung zur Görlitzer Straße der Eingang. Dort sind die Besucherstellplätze, die kontrollierte Zufahrt in den Polizeihof und die Zufahrt zu den Bedienstetenstellplätzen  untergebracht. Der Bau ist als klassische Dreibundanlage konzipiert und gewärleistet maximale Funktionalität und Wirtschaftlichkeit. In den Regelgeschossen sind die unteschiedlichen Sachbereiche der Dienststellen situiert, im Untergeschoß der Trainingsraum und die Hafträume sowie die Lager- und Technikflächen. Das Hochparterre verhindert die direkte Einsichtnahme von der Straße. Die Hafträume können ohne zusätzliche Abgrabungen oder Schächte ausreichend belichtet werden. Die Arbeitsbereiche werden durch nahezu raumhohe Fenster mit Tageslicht versorgt. Das Gebäude wird in massiver Bauweise mit Stahlbetondecken und tragenden Außenwänden mit innen liegendem Kern ausgeführt. Eine flexible Raumaufteilung ist so für Anpassungen gegeben. Die massive Bauweise gewährleistet ein ausgeglichenes und energieoptimiertes Raumklima.

Das neue Gebäudeensemble wird dreiseitig landschaftlich gerahmt. Die Baum überstandenen Besucherstellplätze sind mit einer geschnittenen Hecke eingefasst. Im Norden gehen die begrünten Stellplatzflächen in eine Rasenfläche über, die den Übergang zum neu zu gestaltenden Elisabeth-Selbert-Platz schafft. Am Hauptzugang empfängt eine großzügige Treppenalge mit einer barrierefrei gestalteten Rampe die Besucher.

 

Energiekonzept

Das Gebäude besitzt eine kompakte Geometrie. Die hochgedämmten, tragenden Außenwände und Fenster mit Dreifachverglasung sowie außen liegendem Sonnenschutz minimieren die Wärmeverluste der Gebäudehülle. Für eine gleich bleibende Luftqualität sorgt eine kontinuierliche Be- und Entlüftung mit  hocheffizienter Wärmerückgewinnung. Die vorhandenen Massivbauteile wirken als Puffer und gleichen thermische Lastspitzen aus. Das kontrollierte Zusammenspiel von Speichermasse und Lüftung gewährleistet die notwendigen Temperaturanforderungen für alle Nutzungen

Die erforderliche Lüftungsanlage zur Außenluftversorgung ist mit Wärmerückgewinnung ausgestattet. Zusätzlich ist eine Luftvorwärmung/Luftvorkühlung mittels Erdwärmetauscher vorgesehen. Damit wird die Frostfreihaltung des Wärmerückgewinners sichergestellt und der Wärmebedarf für Lufterhitzer weiter reduziert. Die Beheizung des Gebäudes kann über eine Wärmepumpe mit Grundwasseranschluss erfolgen, alternativ ist der Betrieb von Gas-Brennwertkesseln möglich. Für beide Systeme ist auf möglichst tiefe Rücklauftemperaturen zu achten.Die eingesetzten hochwertigen Fassaden reduzieren den Wärmebedarf erheblich und durch innere Wärmelasten von Personen (zeitweise auch von Computern) und  Beleuchtung. Durch den Einsatz der thermischen Solaranlage wird die Wärme-Jahresarbeit weiter reduziert.

Als Heizfläche wird eine Baukernaktivierung vorgeschlagen, um mit Niedertemperatur eine energetisch vorteilhafte und komfortable Versorgung zu gewährleisten. Die Heizflächen werden durch eine intelligente Regelung witterungsgeführt und je Einzelraum geregelt. Geringe Temperaturabweichungen werden durch die aktiven Speichermassen gedämpft. Die Flächenheizung bietet nach Bedarf und mit geringem Aufwand die Möglichkeit einzelne Teilflächen in der warmen Jahreszeit zu kühlen, dabei kann das für die Wärmepumpe zur Verfügung stehende Grundwasser als Kühlmedium verwendet werden. Die Freigabe dieser Funktion kann zentral über die Gebäudeautomation erfolgen.

Eine Substitution des Trinkwassers mit Regenwasser ist in Gebäuden immer dort möglich, wo für das verwendete Wasser keine Trinkwasserqualität erforderlich ist. Regenwasser kann allemal für die Toilettenspülung und PKW-Waschanlage verwendet werden. Das sehr weiche Wasser verursacht zudem deutlich geringere Ablagerungen (kein Kalk!) und reduziert somit den Wartungsaufwand erheblich. Das Regenwasser von Dachflächen wird im UG gesammelt und gespeichert. Nach Beseitigung von Schwebstoffen und sonstiger Verunreinigungen sowie nach UV-Entkeimung wird das Wasser der weiteren Nutzung zugeführt.

Netzgekoppelte Solarstrom-Anlagen sollen mit Photovoltaikelemente auf den Dächern zum Einsatz kommen. Zur Reduzierung des Strombedarfes für Beleuchtung wird einerseits Tageslicht in die Funktionsräume gelenkt und andererseits die Beleuchtung als Ergänzungs-beleuchtung nach Bedarf mehrstufig zugeschaltet. In nicht ständig besetzten Innenräumen wird die Beleuchtung über Bewegungsmelder automatisch zu-/abgeschaltet. Bei der Beleuchtung kjommen verlustarme Vorschaltgeräte zum Einsatz. Eine intelligente (selbstlernende) Regelungs- und Steuertechnik hält die wechselnden Raumkonditionen entsprechend den geforderten Toleranzen ein. 

Auslober
Freistaat Bayern
Staatliches Bauamt Erlangen-Nürnberg
www.stbaer.bayern.de

Nutzer
Polizeiinspektion Nürnberg Süd
www.polizei.bayern.de

Verfasser
Robert Rechenauer Architekt BDA

Caroline Geiger
Silke Feurle
Michael Striebel
Agnes Hofer-Guoth

Kübertlandschaftsarchitektur