Info
R

Robert Rechenauer Architekten

Hans-Sachs-Straße 6  80469 München  Telefon 089 236856‑0
info@rechenauer-architekten.de
1 ⁄ 9 2 ⁄ 9 3 ⁄ 9 4 ⁄ 9 5 ⁄ 9 6 ⁄ 9 7 ⁄ 9 8 ⁄ 9 9 ⁄ 9

Gemeindezentrum Rogatekirche
Wettbewerb 2013

Rogate = Betet! Lat. rogare = fragen, befragen, bitten, beten.

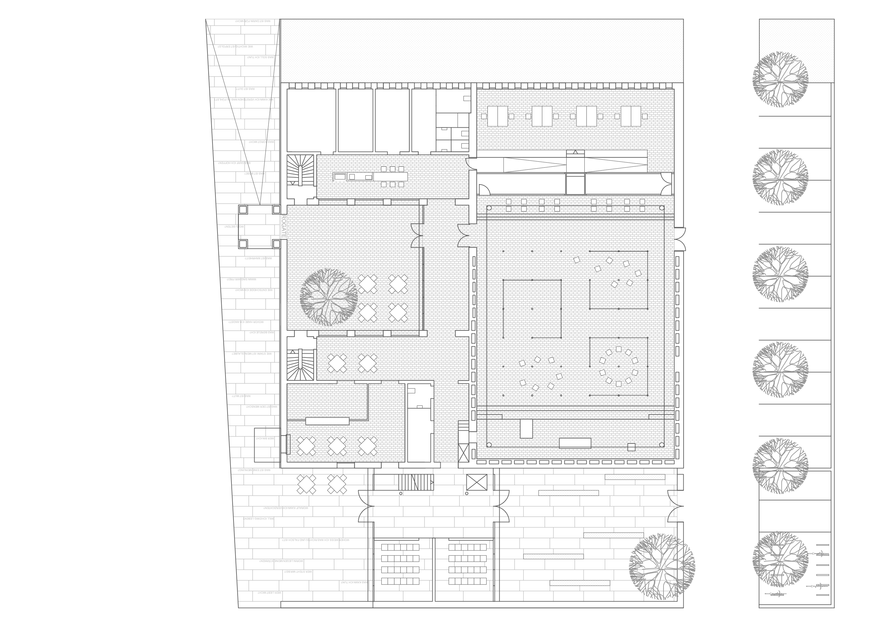
Ein neuer, breit und trapezförmig angelegter Weg führt zum vertrauten Eingang ins Gemeindezentrum oder - am Fuß des Kirchturms vorbei - zum südlichen Teil des Grundstücks, wo der Weg in einen Vorplatz mündet, der städtebaulich und gestalterisch den neuen Auftritt der Evangelischen Jugend formuliert. 

+

Der markante Turm der Rogatekirche strahlt weit ins Quartier und signalisiert auch dem fremden Besucher den Ort der Gemeinde an der Bad-Schachener-Straße. Der neue Weg führt barrierefrei zum Vorplatz mit dem Eingang für die Evangelische Jugend. Der Besucher wird dabei gelenkt von ausgewählten Fragen, die - ähnlich dem Schriftzug ROGATE an der Schwelle des Innenhofs - in den Plattenbelag des Weges eingelassen sind. Dezente Beleuchtung unterstützt in den Abendstunden den Zugang.

Der Vorplatz ist Teil eines Areals, auf dem der Neubau für die benötigten Erweiterungsflächen untergebracht ist. Vorplatz, Neubau und ein Gartenhof bilden ein eigenständiges Ensemble, das sich an den Gestaltungsmustern des denkmalgeschützten Bestandes anlehnt. Im Gegensatz zum Bestand öffnet sich der Bau zum Grünzug, sodass eine offene und einladende Eingangssituation entsteht.

Die transparent gestaltete Fassade und die offene Gebäudestruktur lenken den Besucher ins Gebäude und führen ihn weiter zum Gartenhof, wo die Jugend einen geschützten Freibereich erhält. Über die bestehenden Fensteröffnungen ist das Denkmal mit dem Neubau funktionell verbunden. Eine gläserne Fuge trennt das Alte vom Neuen. Durch die offene Tragstruktur bleibt das alte Mauerwerk im Neubau erlebbar. Die Traufhöhe des Neubaus und das einheitliche Material Klinker binden Neues und Altes zu einem Gesamtensemble zusammen.

Auslober
Evangelisch-Lutherisches
Dekanat München
Kirchengemeindeamt
www.muenchen-evangelisch.de

Rogatekirche
www.rogatekirche-muenchen.de

Evangelische Jugend München
www.ej-muenchen.de 

Verfasser
Robert Rechenauer Architekt BDA

Caroline Hörger
Agnes Hofer-Guoth
Silke Feurle

Atelier Kuchenbeiser
Lieb Obermüller Partner
Planunion GmbH