Neubau Geowissenschaften München
Wettbewerb 2018, Phase 2
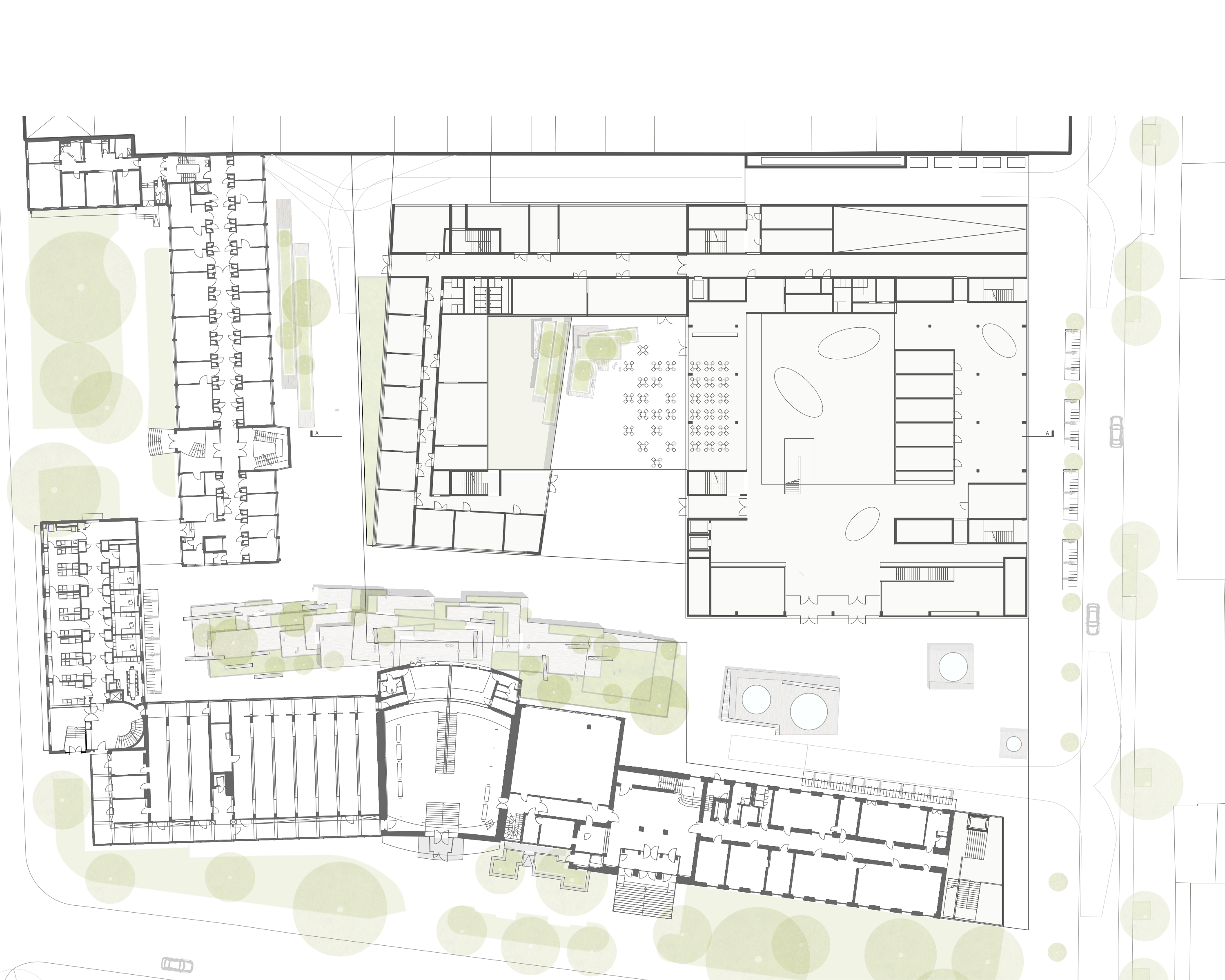
Die „Alte Anatomie“ Leo von Klenzes stellte einst den Nukleus des wissenschaftlichen Schaffens in der Ludwigsvorstadt dar. Das Gebäude wurde im Krieg zerstört, das Areal in den 1950er Jahren bebaut. Jetzt soll der Ort mit dem Neubau für die Geowissenschaften einen neuen städtebaulichen Impuls erfahren.
Der Neubau der Geowissenschaften schmiegt sich im Norden an die bestehende Blockrandbebauung der Schillerstraße an. Die neue Bebauung wird aber nicht bis zum Ende der Straße fortgeführt, sondern endet vorzeitig auf Höhe der gegenüberliegenden Baulücke, die derzeit die Mensa beherbergt. Der vormals geschlossene Häuserblock bleibt offen, sodass das neue Gebäude über Eck erlebbar wird. Aufgrund der Freistellung entwickelt es im Stadtraum eine starke, selbstbewusste Präsenz. Die Erweiterung des Gehwegs durch Einhaltung der Abstandsflächen und die Fassaden unterstreichen diese Wirkung. Der freigestellte Baukörper versteht sich als Reminiszenz an die zerstörte „Alte Anatomie“, die einst als Solitär den Stadtraum an dieser Stelle definierte.

Zwischen dem bestehenden Institutsbau an der Pettenkoferstraße und den neuen Geowissenschaften öffnet sich ein Stadtraum, der zum Erkunden des neuen Campus einlädt. Die Freiflächen werden durch eine Abfolge von Plätzen charakterisiert, die allen Nutzungen eine klare Adressierung zuweist. Das Gelände bleibt dem Fußgänger vorbehalten, der es von der Schillerstraße bis zur Goethestraße barrierefrei durchqueren kann. Das denkmalgeschützte Hörsaalgebäude wird durch die Schrägstellung der gegenüberliegenden Wand akzentuiert, was die gemeinsame, institutsübergreifende Nutzung verdeutlicht. An der Ecke Schiller-/Pettenkoferstraße wird ein „Torbau“ errichtet, der einerseits den Eingang zum neuen Universitätscampus markiert, andererseits den 2. Rettungsweg aus dem bestehenden Institutsgebäude und dem Untergeschoss des Neubaus sichert.
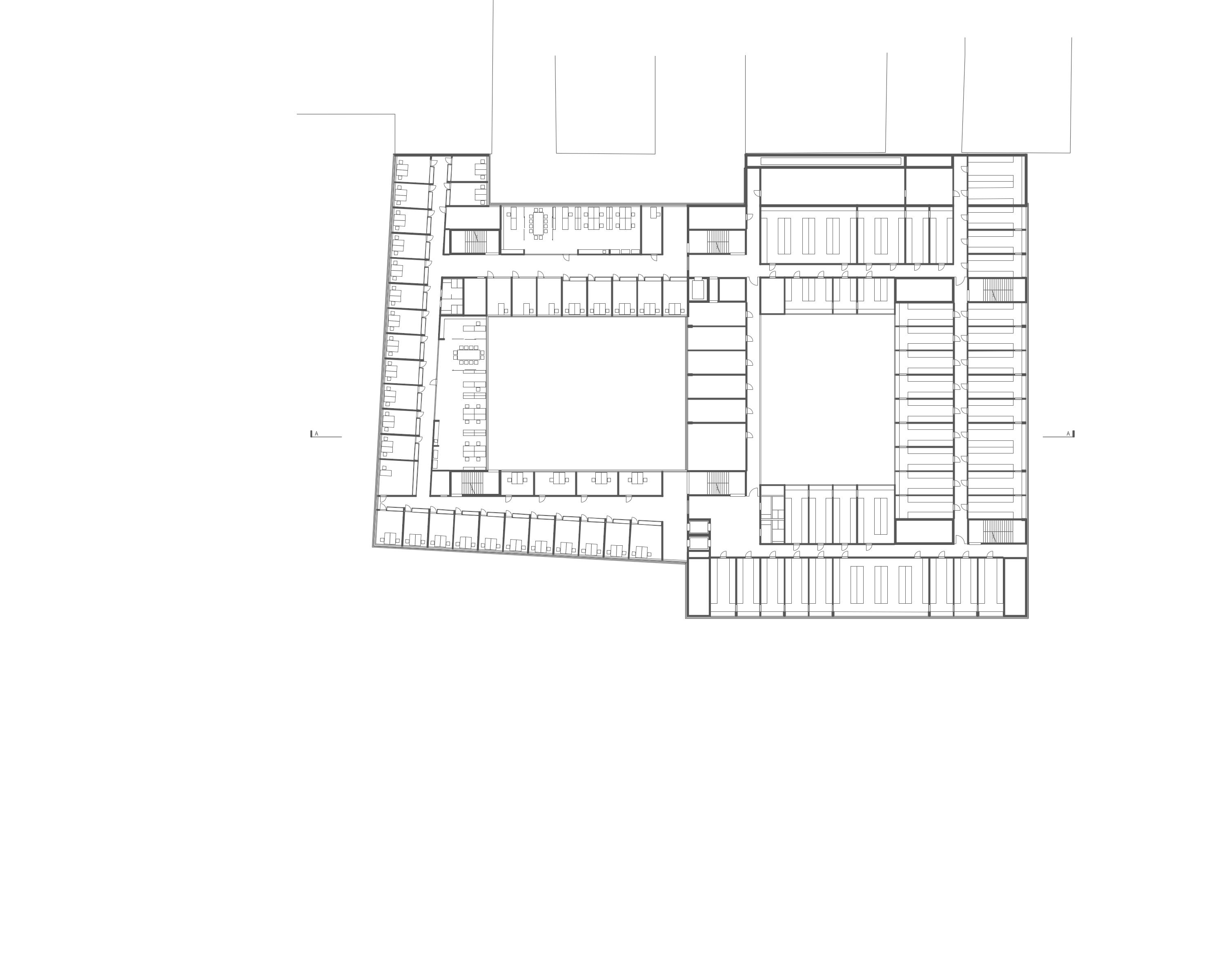
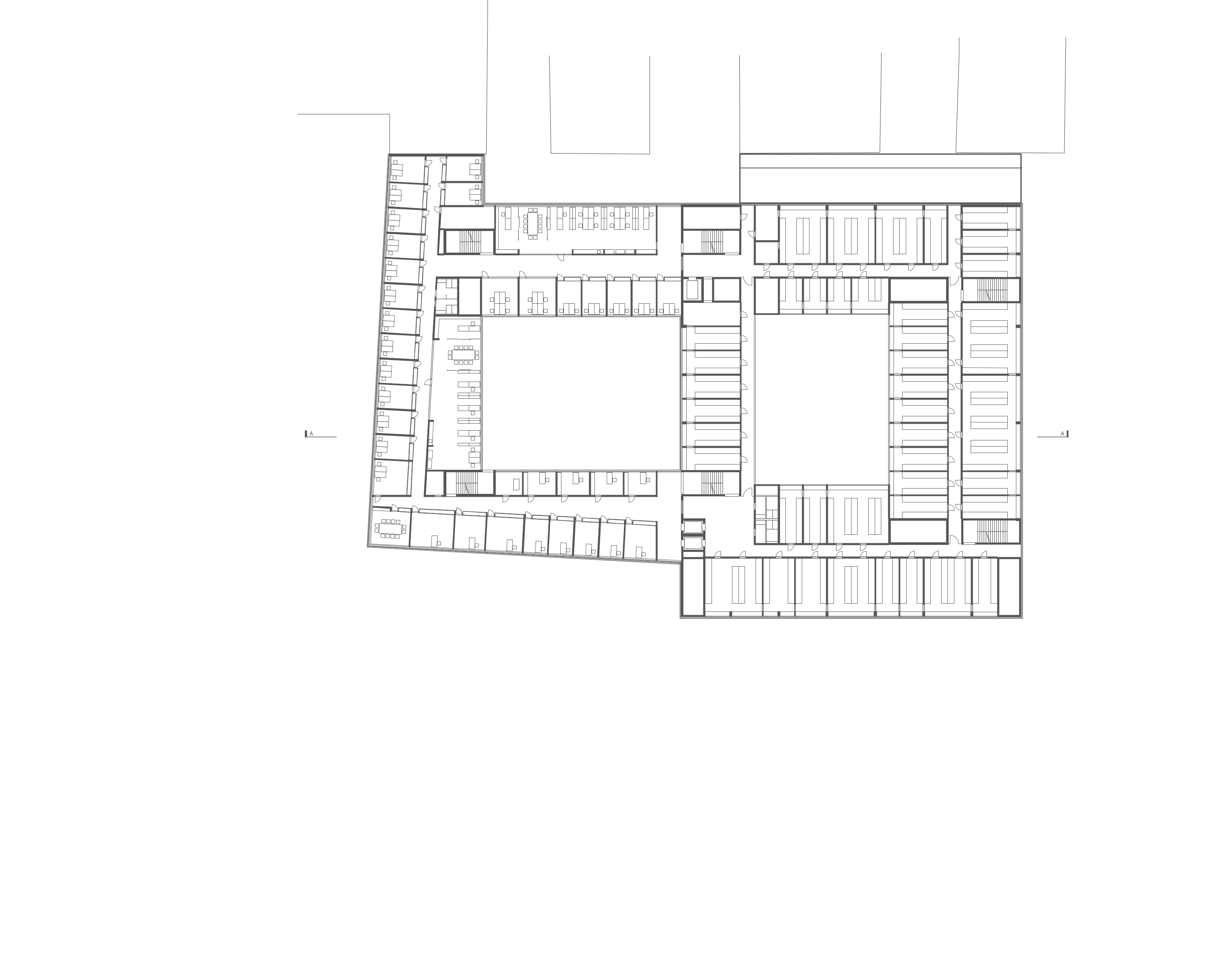
Die Geowissenschaften sind in einem gestuften, in zwei Trakte unterteilten Baukörper untergebracht. Der Gebäudetrakt an der Schillerstraße beherbergt das „Forum Geowissenschaften“, die Cafeteria, die Bibliothek und die Labore. Im angrenzenden Gebäudetrakt sind um einen Innenhof die Büros und Werkstätten organisiert.

Der Haupteingang am Campus führt direkt ins Forum der Geowissenschaften, das sich bis zur Schillerstraße erstreckt, so dass es auch von dort erlebbar ist. Am Eingang verweisen Lufträume und eine Freitreppe auf die Ausstellungsflächen in UG 1. Sie verbinden die neuen Nutzungen mit dem Gebäudebestand an der Pettenkoferstraße; vom Campus aus kann man über „Lichtbrunnen“ einzelne Exponate sehen. Dem Forum direkt zugeordnet ist die Cafeteria, die sich zum benachbarten Innenhof orientiert, welchen eine großzügig gestaltete Passage mit den Campus verbindet. Über dem Forum öffnet sich ein Atrium, das kommuniziert, dass man soeben einen modernen Institutsbau betreten hat. Eine großzügig gestaltete Freitreppe führt ins OG 1, in die Beletage mit Bibliothek und Übergang in die Bürobereiche. In den weiteren Obergeschossen sind um das Atrium die Labore konzentriert. Direkte Einblicke in die Funktionsbereiche erklären dem Besucher die Nutzung. Das Atrium vereint die Verkehrsflächen, sorgt für eine gute Orientierung und bietet Kommunikationsbereiche, die das wissenschaftliche Arbeiten im Haus befördern. Durchgängige Schächte bieten ausreichend Platz für die technische Erschließung und sorgen für eine optimale Revision. Konisch verlaufende Flurbereiche bieten vor den Büros ausreichend Platz für Ausstellung und Kommunikation. Alle Büros sind natürlich belüftet und belichtet. Lichthöfe versorgen die Werkstätten in UG 1 mit ausreichend Tageslicht. In UG 2 sind Lager- und Technikflächen untergebracht.
Die Anlieferung und Entsorgung erfolgt über die Schillerstraße im Norden. Dort führt eine Einfahrt entweder zu den Parkplätzen in die Tiefgarage oder als Durchfahrt in den rückwärtigen Teil der Anlage in einen Lieferhof, an dem die Werkstätten situiert sind. Parallel zur Durchfahrt läuft im Gebäudeinneren eine Magistrale, die alle Bereiche miteinander verbindet.

Fassade und Gestaltung
Das Gebäude wird als Massivbau in Sichtbetonbauweise errichtet. In Anlehnung an eine Wand aus „Stampfbeton“ bleiben die Betonagen sichtbar. Schichtung, Materialität und Oberfläche stehen für den tektonischen Aufbau der Erde. Auf Fussgängerebene öffnet sich das Gebäude mit großformatigen Fensterflächen zum Campus und zur Stadt und bietet so Einblicke in die Welt der Geowissenschaften. In den oberen Geschossen erhält das Gebäude eine feinmaschige Struktur aus hellen Lamellen, die einerseits interessante Ein- und Ausblicke bieten, andererseits für ausreichenden Sonnenschutz sorgen. Die Hülle ermöglicht eine flexible Gestaltung von „offenen und geschlossenen“ Laboren. Zudem zeichnet sie das Bauwerk als Sonderbau aus. Seine äußere Erscheinung wandelt sich im Licht der Tages- und Jahreszeiten, unterschiedliche „Aggregatzustände“ bezeugen lebendiges Forschen und Studieren.
Brandschutz
Der Baukörper wird durch eine in Nord-Süd Richtung verlaufende Brandabschnittstrennung in zwei Brandabschnitte (Ost und West) geteilt, zusätzlich werden die Labore über feuerbeständige Wände in Brandzellen strukturiert und damit vom offenen Atrium feuerbeständig getrennt. Die Brandzellen können auch im Bürotrakt realisiert werden. So entstehen leicht beherrschbare, kleinteilige, abgetrennte Bereiche für wirksame Löscharbeiten. Die beiden notwendigen Rettungswege werden baulich über notwendige Flure und Treppenräume hergestellt, die über einen unmittelbaren Ausgang ins Freie verfügen. Die Anzahl der Treppenräume ist so optimiert, dass alle notwendigen Rettungsweglängen eingehalten werden. Innerhalb der „Labor Brandzellen“ führen Bypässe unabhängig vom Atrium zum notwendigen Flur. Ein Rettungsweg in der westlichen Laborspange führt in Anlehnung an vergleichbare Sonderbauvorschriften über das offene Atrium, das an oberster Stelle Entrauchungsflächen erhält. Aufgrund der offenen Strukturen und Kommunikationsflächen wird eine Brandmeldeanlage mit Alarmierung installiert. Über die Durchfahrt im Norden werden alle Fassaden erreicht. Die Bewegungsflächen für Löscharbeiten befinden sich auf dem Grundstück. Die von Besuchern im UG genutzten Flächen verfügen über bauliche Rettungswege die unabhängig vom restlichen Gebäude funktionieren.

Klima- und Energiekonzept
Für den Gebäudekomplex wurde ein integriertes Klima- und Energiekonzept entwickelt, das in allen Nutzungsbereichen optimierte Behaglichkeit unter Einhaltung der Nutzervorgaben bietet, den Gebäudeenergiebedarf stark minimiert und über eine optimierte Gebäudehülle und angepasste passive und aktive Strategien hohe winterlichen und sommerlichen Komfort bei günstigen Energiebedarfswerten erwarten lässt.
Die Fassaden der neuen Gebäude werden als kerngedämmte Sichtbetonfassaden mit großen Verglasungsbereichen aus 3-fach Glas und einem vorgesetzten vertikalen Stäben ausgeführt. Durch diesen feststehenden externen Sonnenschutz werden in Kombination mit einer hochselektiven Verglasung gute Tageslichteinträge bei minimierten solaren Wärmeeinträgen gewährleistet. Raumseitig der Verglasung sind reflektierende teiltransparente Sonnen- und Blendschutzscreens angeordnet. Durch die Absaugung der Raumabluft aus dem Zwischenraum zwischen Verglasung und Screenbehang wird dieser gekühlt und so eine negative Erwärmung und Abstrahlung in den Raum vermieden. Über eine automatisierte Ansteuerung des Sonnenschutzes kann die passiv solare Nutzung, Tageslichtqualität und Blend- und Sonnenschutzfunktion gleichzeitig optimiert werden. Eine individuelle Übersteuerungsmöglichkeit des Sonnenschutzes ist gewährleistet. In den Bürobereichen sind in die Fassaden Lüftungsflügel integriert, so das eine individuelle natürliche Lüftung der Büros möglich ist. Durch entsprechende Öffnungsbegrenzer der Lüftungsflügel kann die die in den Raum einströmende Zuluftmenge begrenzt werden. Unkontrollierte Lüftungswärmeverluste werden so begrenzt und Zugerscheinungen minimiert.
Die Labore werden über die zentrale mechanische Grundlüftung mit Frischluft aus Lüftungszentralen im UG versorgt. Die konditionierte Frischluft wird über die zentral angeordneten Schächte in die Etagen geführt und über Kanäle in den Flurbereichen verteilt. Aus den Flurzonen führen einzelne Stichleitungen oberhalb einer offenen abgehängten Streckmetalldecken zu den Quellluftauslässen im Raum aus denen die Frischluft impulsarm und mit leichter Untertemperatur in den Raum einströmt und sich quellluftartig am Boden ausbreitet. Die Abluft wird hinter den textilen Screens über Abluftkanäle entlang der Fassaden abgesaugt und zurück zu den Steigschächten und zu den Lüftungszentralgeräten zurückgeführt. Dort erfolgt eine hocheffiziente Wärmerückgewinnung aus der Abluft über Gegenstrom - Wärmeübertrager mit integrierter passiver adiabatischer Kühlung im Sommer. Die massiven Decken in allen Bereichen werden im Sommer über eine in die Betondecken integrierte Bauteilaktivierung gekühlt, was einen sehr guten Komfort sicherstellt. Die Bauteilaktivierung wird im Sommer vorwiegend während der Nachtstunden betrieben, damit die Kühlung weitgehend über freie Kühlung über ein Grundwasserbrunnensystem erfolgen kann und eine Lastgangglättung über den Tagesverlauf erfolgt. Die Elektro und Medienverteilung erfolgt ebenfalls oberhalb dieser offenen Streckmetalldecken. Das unter den Decken verlaufende Steckmetall weist eine hohen Perforationsgrad (>70%) auf und ist über die metallische Ausführung der Oberfläche Infrarot reflektiv, was die Strahlungskühlung der aktivierten Decke in die Räume hinein trotz Abhängung ermöglicht. Die Raumkonditionierung im Winter erfolgt in den Laborbereichen über die Temperierung der Bauteilaktivierung im Heizbetrieb und die erwärmte mechanische Zuluft. In den Büros sind zusätzlich statische Heizflächen entlang der Fassaden vorgesehen. Im extremen Winterbetreib wird die thermische Behaglichkeit über angenehme Strahlungswärme der Decken gesteigert.
Energieversorgungskonzept
Die Wärmeversorgung des Gebäudes erfolgt über Fernwärme der Stadtwerke München aus Kraft-Wärme-Kopplung und Müllverbrennung versorgt wird und einen exzellenten Primärenergiefaktor für die Wärmeversorgung bietet. Die Kälteversorgung erfolgt primär über ein Saug- und Schluckbrunnensystem, in dem das Grundwasser über einen Wärmeübertrager direkt zur Kühlung eingesetzt wird. Eine mechanische Kühlung ist nur aus Redundanzgründen vorgesehen. Die adiabate Abluftbefeuchtung senkt zudem den Kältebedarf für die Lüftung deutlich. Das Dach des Laborgebäudes wird zur solaren Stromerzeugung genutzt. Flach montierte Photovoltaikmodule oberhalb der wasserführenden Dachhaut ermöglichen eine optimale Flächenausnutzung, da sich die Module nicht gegenseitig verschatten. Durch eine gute Hinterlüftung zur Begrenzung der sommerlichen Modultemperaturen wird ein optimierter Anlagenbetrieb ermöglicht. Die mit hocheffizienten Modulen ausgeführte Anlage kann somit Strom für den Gebäudebetrieb bereitstellen bzw. in das öffentliche Netz einspeisen.
Fazit: Das entwickelte Gebäudekonzept ist nachhaltig und integraler Bestandteil des architektonischen Konzepts. In der Summe der entwickelten Maßnahmen wird der Verbrauch an Ressourcen signifikant reduziert und es ein hohes Maß an Komfort für die Nutzer erreicht.