Info
R

Robert Rechenauer Architekten

Hans-Sachs-Straße 6  80469 München  Telefon 089 236856‑0
info@rechenauer-architekten.de
1 ⁄ 18 2 ⁄ 18 3 ⁄ 18 4 ⁄ 18 5 ⁄ 18 6 ⁄ 18 7 ⁄ 18 8 ⁄ 18 9 ⁄ 18 10 ⁄ 18 11 ⁄ 18 12 ⁄ 18 13 ⁄ 18 14 ⁄ 18 15 ⁄ 18 16 ⁄ 18 17 ⁄ 18 18 ⁄ 18

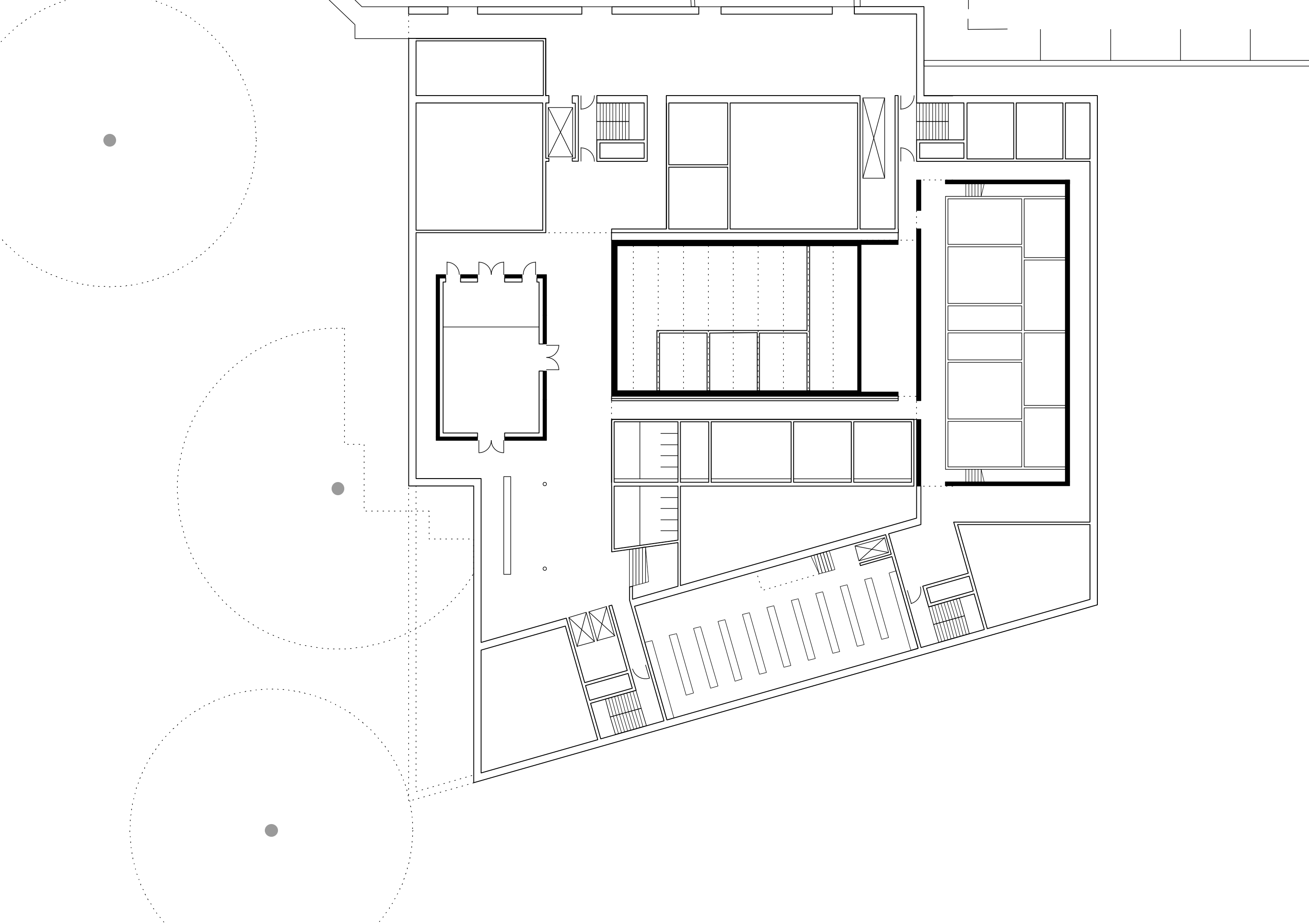
Haus der Musik in Innsbruck
Wettbewerb 2014, 2. Stufe

Vor der Altstadt flanieren am Hof­garten seit 150 Jahren die Innsbrucker. Die Hofburg, das Landes­theater und die Hofkirche haben dabei ihre Rolle gefunden. Das „Haus der Musik“ gesellt sich neu hinzu. 

+

Das Gebäude arrondiert den öffentlichen Platzraum, der durch das behutsame Hinzupflanzen eines Blauglockenbaums den Hofgarten wieder näher an die Stadt heranrückt. Die Wegenetzwerke zum Landestheater und den Gebäuden der SOWI werden neu erstellt oder wieder miteinander verknüpft. Das Gebäude ist als „offenes Haus“ konzipiert, das für alle zu einem lebendigen Ort der Kommunikation und Begegnung wird. Es spricht mit der Umgebung und gibt über die an den Fassaden angeordneten Unterrichts- und Funktionsräume Kundschaft von den vielfältigen Aktivitäten in seinem Inneren. Das Projekt weist eine Hauptorientierung zum Platz neben das Tiroler Landestheater auf und läßt diesem durch ausreichendes Ab- und Zurückrücken die ihm zustehende Bedeutung. Das neue Haus ist eine Einladung an die Bevölkerung, egal ob selbst aktiv Musik machend, Musik studierend oder Musik erlebend, den  Ort aufzusuchen, in dem Musik in vielfältigen Formen entsteht und zu Hause ist.

Das Gebäude weist 3 Hauptebenen auf: die Stadtebene, die Belétage und das Atriumsgeschoß. Dazwischen befinden sich Zwischengeschoße, die die doppelten Geschoßhöhen der Hauptsäle überbrücken. Die Nutzungen im Erdgeschoß bieten ausreichende Öffentlichkeitswirkung um den Anspruch an ein offenes Haus der Musik gerecht zu werden. Mit dem großzügigen Eingangsbereich, dem Foyer, dem Restaurant, den Kammerspielen und der Bibliothek sind bereits auf der Stadtebene wichtige öffentliche Funktionen  angeordnet. Auf der darunterliegenden Ebene befindet sich, ihrem Charakter gemäß, die Black Box der Kammerspiele.

Der Zugang zum Bereich Mozarteum erfolgt repräsentativ über den Haupteingang am Platz. Im Eingangsfoyer sind linker und rechter Hand Aufzüge situiert, über die man barrierefrei in die oberen Geschoße gelangt. Neben den Aufzügen stehen den Nutzern die allgemeinen Treppenhäuser zwischen den Geschossen für den kurzen Weg zur Verfügung. Zudem sind die Geschosse über eine großzügig gestaltete Freitreppe direkt an das Hauptfoyer angebunden. Das Foyer erstreckt sich als Luftraum bis ins Atrium des obersten Geschosses. Tageslicht begleitet den Besucher nach oben und sorgt im Jahre- und Tageswechsel für unterschiedliche Stimmungen. Die Durchgängigkeit des Raumes vereint die vielfältigen Nutzungen und sorgt für eine gute Orientierung. Verweilflächen und Blickbeziehungen fördern die Kommunikation im Haus.

Einen Höhepunkt bildet die Belétage. Ein eigenes Foyer erschließt hier den Großen Probesaal des Tiroler Symphonieorchesters, den kleinen Saal, den Vorlesungssaal und den Orgelsaal. Die Ebene der Belétage öffnet sich mit einer großzügigen, dem Foyer vorgelagerten, öffentlich begehbaren Loggia zum Stadtraum und wendet sich so seinem Gegenüber, der Hofburg, zu. Der Probesaal verknüpft sich über seine Türöffnungen  mit dem Foyer zu einem Gesamtraum. Die kleinen Säle erhalten großformatige Fenster, die auch an der Universitätsstraße das Gebäude als „Haus der Musik“ erlebbar machen. Die universitären Nutzungen befinden sich in den oberen Etagen mit dem abschließenden Atriumsgeschoß. Neben den Institutsbereichen beherbergt es den gemeinsamen Probesaal des Tiroler Landeskonservatoriums und der Universität Mozarteum. Der Innenhof bietet den Studenten eine attraktive Aufenthaltsfläche, die zu Open Air Veranstaltungen einlädt. Hier führt das Haus der Musik auch den Dialog mit den die Innsbrucker Stadtansichten prägenden Nordkette. Die geneigten Dachflächen korrespondieren mit den vielfältigen Dachlandschaften der unmittelbaren Umgebung.

In Anlehnung an die homogen gestalteten historischen Putzflächen, die sich in unmittelbarer Nachbarschaft befinden, wird ein „samtig“ wirkendes Erscheinungsbild angestrebt. Um dem „Haus der Musik“ einen eigenen gestalterischen Auftritt als modernen Kulturbau zu geben, wird vorgeschlagen, die Fassade mit hellen gesäuerten Platten aus Betonwerkstein zu verkleiden. Es wird ein der Nutzung „angemessenes“ freundliches Erscheinung angestrebt, das zum Besuch des Hauses einlädt. Um die Eigenständigkeit des solitären Baukörpers zu betonen sollen die Platten einheitlich um die Aussenwände und das Dach herumgezogen werden. Der Baukörper bekommt so eine besondere Prägung, durch die er von der umliegenden Bergwelt identifiziert werden kann. Das monolithisch wirkende Oberfläche  steht im ausgewogenen Kontrapost zur Loggia und dem aufgeglasten Erdgeschoß der Platzseite, wodurch die Orientierung zur Altstadt und der Eingang des Hauses betont wird.

Statisches Konzept

Das Gebäude wird in massiver Bauweise mit Dachkonstruktion, Decken, tragenden Innen- und Außenwänden sowie Stützen aus Stahlbeton erstellt. Im Bereich der großen Loggia nach Westen wird die Fassade stützenlos ausgeführt, die Lastabtragung erfolgt hier mittels eines wandartigen Trägers im obersten Geschoss. Die Gründung erfolgt flächig über tragende Bodenplatten. Durch die Staffelung der beiden Untergeschosse kann der Aufwand für Baugrubensicherung und Wasserhaltung optimiert werden. Die Konzertsäle werden über allseitig entkoppelte Raum-in-Raum Konstruktionen  bauakustisch von der primären Tragkonstruktion abgetrennt. Hierdurch kann zwischen den einzelnen Nutzungsbereichen ein hochgradiger Schallschutz erzielt werden.

Energiekonzept

Das Klima- und Energiekonzept des Gebäudes senkt durch eine optimierte Gebäudehülle und effiziente Raumklimakonditionierungssystemen den Energiebedarf und schafft gleichzeitig optimierten Komfort für die Nutzer. Durch Einsatz regenerativer Energiequellen wie Sonne und Geothermie wird der Primärenergiebedarf in der Jahresbilanz minimiert und ein Beitrag zur Nachhaltigkeit des Gebäudes geleistet.

Die helle Betonwerkfassade erhält eine 26 cm starke Kerndämmung, die Fensterbereiche 3-fach Isoliergläser mit externem Raffstoren für effizienten Sonnen-und Blendschutz mit integrierter Tageslichtumlenkung durch flacher geneigte Lamellen im Oberlichtbereich und eine natürliche Lüftungsmöglichkeit über öffenbare Flügel. In der Loggiafassade hinter dem Außenbalkon wird eine neutrale selektive Sonnenschutzbeschichtung auf dem 3-fach Glas eingesetzt, die fast 60% Tageslicht, aber nur etwa 25% der solaren Strahlung passieren lässt. Dadurch und durch den großen Überhang kann auf einen beweglichen Sonnenschutz verzichtet werden. Die an Boden- und Wandflächen der Foyerbereiche absorbierte Strahlung wird über eine Boden- und Wandflächenkühlung direkt aus dem Raum abgeführt, bevor sie die Raumluft dieser Zonen erwärmen kann. Die nach Süden orientierten Schaufensterbereiche erhalten ebenfalls dieses selektive Sonnenschutz-beschichtung und hinter der Verglasung einen reflektierenden textilen Sonnen- und Blendschutz.

Die Grundversorgung aller Bereiche erfolgt über Strahlungsheiz- und Kühlsysteme.  Hierfür werden integrierte Bauteilaktivierungen in Decken und Wänden sowie Fußbodenheiz/- und Kühlsysteme eingesetzt. In den Übungsräumen werden unter den aktivierten Betondecken thermisch leitfähige, perforierte Segel-absorber eingesetzt, die die Funktionsfähigkeit der Betonkernaktivierung fast nicht beeinträchtigen und für optimierte Raumakustik sorgen. Die im Untergeschoss positionierten Lüftungsgeräte saugen die Frischluft über an der Seitenfassade positionierte Ansaugöffnungen an und sind mit einer hocheffizienten Wärmerückgewinnung ausgestattet. Zur Steigerung des sommerlichen Komforts wird die Frischluft durch indirekte adiabate Abluftbefeuchtung ohne Einsatz mechanischer Kälte auf komfortable Zulufttemperaturen im Sommer abkühlt. Die Abluft wird direkt über Dach ausgeblasen. Über die vertikalen Steigschächte wird die konditionierte Frischluft im Gebäude verteilt und über Quellluftauslässe in den Wandzonen bzw. aus dem aufgeständerten Sitzreihen mit niedrigen Geschwindigkeiten zugfrei eingebracht. Durch diese bodennah eingebrachte Quellluft wird eine thermische Schichtung der Raumluft in den großen Luftvolumina erreicht und die Wärmelasten der Personen sowie des Kunstlichtes effizient abgeführt.

Über Erdabsorber- und Erdsonden unterhalb der Bodenplatte des Gebäudes eine hocheffiziente geothermische Wärmepumpe angetrieben, welche im Heizbetrieb die Grundlast des Gebäudes effizient mit Wärmeversorgt. Lediglich die Spitzenlastwird über einen Gasbrennwertkessel bereitgestellt. Im Sommer und in der Übergangszeit können die Erdabsorbersysteme direkt zur Bereitstellung von Kühlenergie für die Flächenkühlungen im Gebäude genutzt werden und senken so den Energieeinsatz für die Kälteerzeugung erheblich. Das Konzept erreicht damit sehr gute Primärenergiekennwerte für die Wärme- und Kälteversorgung. Das entwickelte Gebäudekonzept ist nachhaltig und integraler Bestandteil des architektonischen Konzepts. Aufgrund der Summe der Maßnahmen wird der Verbrauch an Ressourcen signifikant reduziert und es ein hohes Maß an Komfort für die Nutzer in diesem zukunftsweisenden Gebäude erreicht.

Brandschutzkonzept

Der Neubau des „Hauses der Musik“ stellt aus brandschutztechnischer Sicht unter Berücksichtigung seiner Ausdehnung sowie der geplanten Nutzung ein Gebäude der Gebäudeklasse 5 im Sinne der OiB-Richtlinien dar. Ferner handelt es sich um ein Sondergebäude, für das ein Brandschutzkonzept zu erstellen ist, da es sich um eine Versammlungstätte mit mehr als 1.000 Personen handelt. Ein geschossübergreifendes Foyer wird sich vom 1. Untergeschoss bis in das 5. Obergeschoss erstrecken. Das Gebäude ist von Süden unmittelbar und von Westen über einen Platz durch die Feuerwehr erreichbar, wobei die Gehweglänge von 80 m zu jedem Gebäudezugang eingehalten wird.

Die Rettungswege im Gebäude werden vollständig baulich sichergestellt. Sie werden in maximal 40m Gehweglänge bzw. für 7,50 m hohe Versammlungsräume in maximal 45 m Gehweglänge bis zu gesicherten Treppenräumen geführt. Die Rettungswege werden so gestaltet, dass mindestens ein Rettungsweg unabhängig von dem geplanten Foyer geführt wird bzw. dass andere Maßnahmen zur gesicherten Rettungswegführung vorgesehen werden z. B. die Abtrennung der Rettungswege mittels mobiler Rauchschutzabschlüsse. Als vertikale Rettungswege dienen vier notwendige Treppenräume, die über alle Geschosse und im Erdgeschoss direkt ins Freie geführt werden. Rettungswegbreiten werden entsprechend der OiB-Richtlinie 4 („Nutzungssicherheit und Barrierefreiheit“) geplant.

Die Untergeschosse können in Brandabschnitte (< 800 m. Netto-Grundfläche) untergliedert werden. Durch das geplante Foyer, als offene Gestaltung innerhalb des Gebäudes, können in den oberirdischen Geschossen Brandabschnitte entsprechend der OiB-Richtlinie nicht ausgeführt werden. Das Schutzziel der Richtlinie „Verhinderung einer Brand- und Rauchausbreitung“ lässt sich mit dem vorliegenden Entwurf jedoch erreichen. Es ist dazu vorgesehen, eine automatische Löschanlage zu installieren, die eine Brandausbreitung sowohl in der Horizontalen als auch in der Vertikalen verhindert. An das Foyer angrenzende Wände werden als feuerwiderstandsfähige Trennwände errichtet. Versammlungsräume werden brandschutztechnisch abgetrennt, dies gilt ferner für den Raum „Kammerspiele“ gegenüber der geplanten Großbühne, wobei für den Abschluss der Bühnenöffnung ein Schutzvorhang A1 in Verbindung mit der geplanten automatischen Löschanlage vorgesehen ist. Das Gebäude wird flächendeckend mit einer automatischen Brandmelde- und Alarmierungsanlage sowie mit einer automatischen Löschanlage ausgestattet. Die Rauchableitung aus den Versammlungsräumen wird über mechanische Rauch- und Wärmeabzugseinrichtungen erfolgen. Weitere Räume werden ebenfalls mechanisch bzw. natürlich über manuell öffenbare Fenster entraucht. 

Bauherr
IIG - Innsbrucker Immobilien GmbH
www.iig.at 

Verfasser
Robert Rechenauer Architekt BDA
Theater Projekte Daberto + Kollegen
Architektengemeinschaft

Sascha Löffler
Agnes Hofer-Guoth
Silke Feurle

Konsulenten
Kübertlandschaftsarchitektur
Lieb Obermüller Partner
Transsolar Energietechnik GmbH
hppberlin, Ingenieure für Brandschutz