Info
R

Robert Rechenauer Architekten

Hans-Sachs-Straße 6  80469 München  Telefon 089 236856‑0
info@rechenauer-architekten.de
1 ⁄ 14 2 ⁄ 14 3 ⁄ 14 4 ⁄ 14 5 ⁄ 14 6 ⁄ 14 7 ⁄ 14 8 ⁄ 14 9 ⁄ 14 10 ⁄ 14 11 ⁄ 14 12 ⁄ 14 13 ⁄ 14 14 ⁄ 14

Hubertus Alpin Lodge
Erweiterung und Neustrukturierung
Wettbewerb 2019

In wilder Natur kulminiert in Balder­schwang die Bebauung. Auf der Suche nach möglichst viel Schutz vor Wetter, Kälte und Schnee, rücken an der Hubertus Alpin Lodge die Bauten aufs Engste zusammen. Die Dichte der Bebauung steht in deutlichem Kontrast zur Weite der Landschaft. Im geglückten Zusammenspiel von Dichte und Weite liegt die Besonderheit des Ortes.  

+

Die Hubertus Alpin Lodge bietet ihren Gästen Schutz und Erholung, doch unliebsame Enge begrenzen derzeit den Betrieb und die Gestaltung. Ziel des Konzepts ist, dem Bestand die einschränkende Enge und die irritierende Wegeführungen zu nehmen, stattdessen eine qualitätsvolle Dichte zu schaffen und in die Gestaltung der Bauten die Großzügigkeit der Landschaft einfließen zu lassen. Langfristig soll dies durch die Beruhigung der Dachlandschaft, eine Vereinheitlichung der Fassaden und die Optimierung der bestehenden Grundrisse erfolgen. Verdichteter Städtebau und weite Landschaft sollen nicht in einem Gegensatz zueinander, sondern ein einer ausgewogenen Spannung stehen.

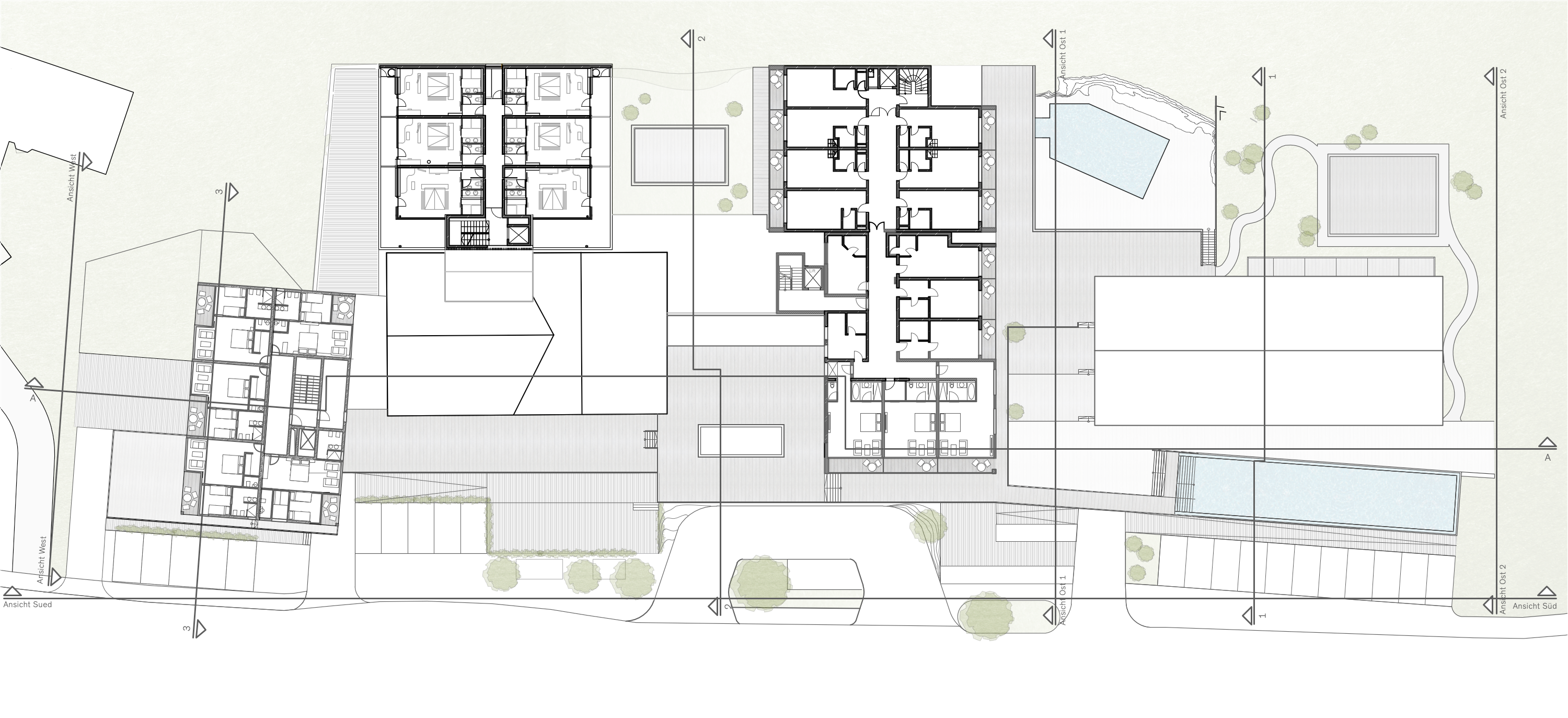
Gestalterisch fasst ein durchgehender Sockel die Bausteine der gewachsenen Anlage zusammen. Er beherbergt in erster Linie dienende Funktionen wie Eingang, Empfang, Erschließung, Bewirtung von Tagesgästen und Verwaltung. Er bildet im 1. Obergeschoss eine erhöhte Dorfebene, die im Außenbereich exklusiv den Gästen als erweiterte Ruhefläche und Sonnenterrasse dient. Darüber erheben sich die Gast- und erweiterten Spa-Bereiche als eigenständige Baukörper.

Außenanlagen
Die Stellplätze werden direkt an der Straße angeordnet, so dass entlang der Hubertus-Bauten ein Terrassen- und Fussgängerbereich entsteht, der verkehrsfrei von Haus zu Haus führt. Rund um den Spa-Bereich staffeln sich die Freiflächen in Terrassen um die Funktionsbereiche. Im Osten wird ein Wandelgarten angelegt, der in die offene Weidelandschaft übergeht.

Neubau Familienlodge mit Neubau Tiefgarage
Am westlichen Ende des Ensembles wird auf dem neu erworbenen Grundstück die Familien Lodge situiert. Dem Eingangsbereich ist der Werkraum zugeordnet, sodass  dem Gast schon beim Betreten der Lodge bewusst wird, dass Kinder hier willkommen sind. Das Hallenbad, auf gleicher Ebene ins Gelände modelliert, orientiert sich mit einer Liegeterrasse nach Süden. Das Buffetrestaurant in OG1 steht über einen durchgängigen Versorgungsgang im direkten funktionalen Zusammenhang mit der bestehenden Gastronomie des Haupthauses. Der Speisesaal öffnet sich mit einer vorgelagerten Terrasse nach Südwesten, sodass sich die Kinder auch während der Essenszeit sinnvoll beschäftigen können. Daneben und darüber staffeln sich die Familien-Suiten mit eigens zugewiesenen Freibereichen. Die Highlight-Suiten liegen in OG2 und 3 an der Südwestecke mit dem bevorzugten Ausblick auf den Riedbergpass und in die Berge. Geneigte Dächer und in Holz gefasste Loggien bringen den Bezug zur Region und den umgebenden Naturraum der Allgäuer Alpen zum Ausdruck. Im Innenbereich wird das Motiv der naturbelassenen Hölzer an Boden, Wand und Decke fortgeführt, die Räume und Einrichtung dominiert der warme Farbton von Lärchenholz. Unter dem Neubau wird eine Tiefgarage errichtet, die sich entlang der Dorfstraße bis zur Lobby zieht und von dort aus ebenfalls erschlossen werden kann. Die Tiefgarage kompensiert zum Teil Stellplätze an der Dorfstraße, so dass die gewonnenen Freiflächen für zusätzliche Nutzungen wie Bewirtung, Shop und Equipmentverleih offen stehen.

Systematisierung Erdgeschosszone mit neuer Beiz
Die Erdgeschosszone der bestehenden Anlage wird unter Beibehaltung der konstruktiven Spuren des Bestandes, insbesondere des alten Hubertus-Gasthofes, neu geordnet: Eine großzügig gestaltete Vorfahrt lädt die Gäste zum Besuch ein. Im Schwerpunkt der Anlage wird die neue Lobby organisiert, die mit ihrer offenen Gestaltung die Gäste willkommen heisst. Vom Eingang werden die Gäste barrierefrei entweder in den Gastbereich, die Beiz oder zur Spa-Rezeption mit dem Wellness-Bereich geleitet. Interne Blickbeziehungen erleichtern die direkte Auffindbarkeit. Die Bereiche sind so geordnet, dass es zu keinen ungewollten Durchmischungen bei der Nutzung der unterschiedlichen Funktionsbereiche kommt. Die Beiz, der Shop und der Outdoor-Equipmentbereich orientieren sich zur Straße und erhalten dort einen eigenen Freibereich. Die Anlieferung bleibt im Westen, wo die internen Bereiche für die Verwaltung und Mitarbeiter untergebracht werden.

Die gestalterischen Schwerpunkte in diesen Bereichen bilden die elegante Rezeptionslandschaft der Lobby für den allgemeinen Gastbetrieb die urige Beiz, deren Gestaltung sich bewusst an das alte Gasthaus anlehnt der sanierte Saunabereich, dessen Ruheflächen um einen neu strukturierten Innenhof organisiert sind. Luft und natürliches Licht gelangen so in den tiefsten Bereich des Gebäudes, der zudem im Sommer wie im Winter als Freibereich genutzt werden kann.

Neugestaltung Fassade östlicher Baukörper mit Erweiterungsvorschlag
Unter Einbeziehung des Daches werden die Fassaden des östlichen Erweiterungsbaus von 1990 neu gestaltet. Im Zuge des Umbaus erhält der Baukörper ein zusätzliches Dachgeschoss mit großzügigen Loggien. Hier werden die Zimmer untergebracht, die im Bestand nicht optimal gelegen sind. Eine vorgelagerte Loggienzone in Lärchenholz integriert die bestehenden Fensterkonstruktionen in die neue Gesamtgestaltung. Die Lärchenhölzer sollen naturbelassen bleiben, so dass sich im auf der Zeit der warme Rotton der geschützten Loggienbereiche gegen die verwitterten Flächen der Aussenhaut abzeichnet.

Erweiterung und Sanierung des Spa-Bereichs
Unter Einbeziehung und Verwendung der Baustruktur des bestehenden Spa-Stadels wird dieser um zusätzliche Liegeflächen, Sauna, Fitness- und FKK-Bereiche erweitert. In den dem Stadel vorgelagerten Sockel ist der Aussenpool des Natur-Schwimmbades modelliert,  Wie in einem Bergsee öffnet sich dem Schwimmer von dort der endlose Blick in die Berge.

Bauzeiten und Bauabschnitte
Das Konzept formuliert ein langfristiges Gestaltungsziel, dass in Abstimmung mit den Betriebsabläufen der Lodge in einzelne Teilprojekte unterteilt werden kann. Die einzelnen Funktionsbereiche stellen verschiedene Bauabschnitte (BA) dar, die zeitgleich oder nacheinander realisiert werden können. Der Betrieb kommt während der Bauzeit nie komplett zum Erliegen. Die gewählten Konstruktionsarten in Holzbauweise ermöglichen einen hohen Vorfertigungsgrad, so dass die Bauzeiten entgegen herkömmlichen Massivbauweisen deutlich verkürzt werden können. Folgender Bauablauf bietet sich an:

BA 1 : Errichtung der Familienlodge mit Tiefgarage West, Erweiterung Spa-Bereich Ost

BA 2 : Systematisierung EG West (Lobby, Beiz, Verwaltung) mit Neubau Tiefgarage (Ostteil) und Spa-Bereich West. Die Rezeption der Familienlodge kann während der Neustrukturierung der zur Kompensation herangezogen werden; der Zugang zum Bauteil West erfolgt dabei über den neuen Verbindungsgang zum Restaurant.

BA 3 : Systematisierung EG Ost (Shop, Equipment) mit Neugestaltung der Fassade und Erweiterung Bauteil Ost.

Auslober
Traubel Immobilien OHG
Balderschwang
www.hotel-hubertus.de

Verfasser
Robert Rechenauer Architekt BDA

Natalie Deimel
Iuliia Aulkina
Silke Feurle