Info
R

Robert Rechenauer Architekten

Hans-Sachs-Straße 6  80469 München  Telefon 089 236856‑0
info@rechenauer-architekten.de
1 ⁄ 4 2 ⁄ 4 3 ⁄ 4 4 ⁄ 4

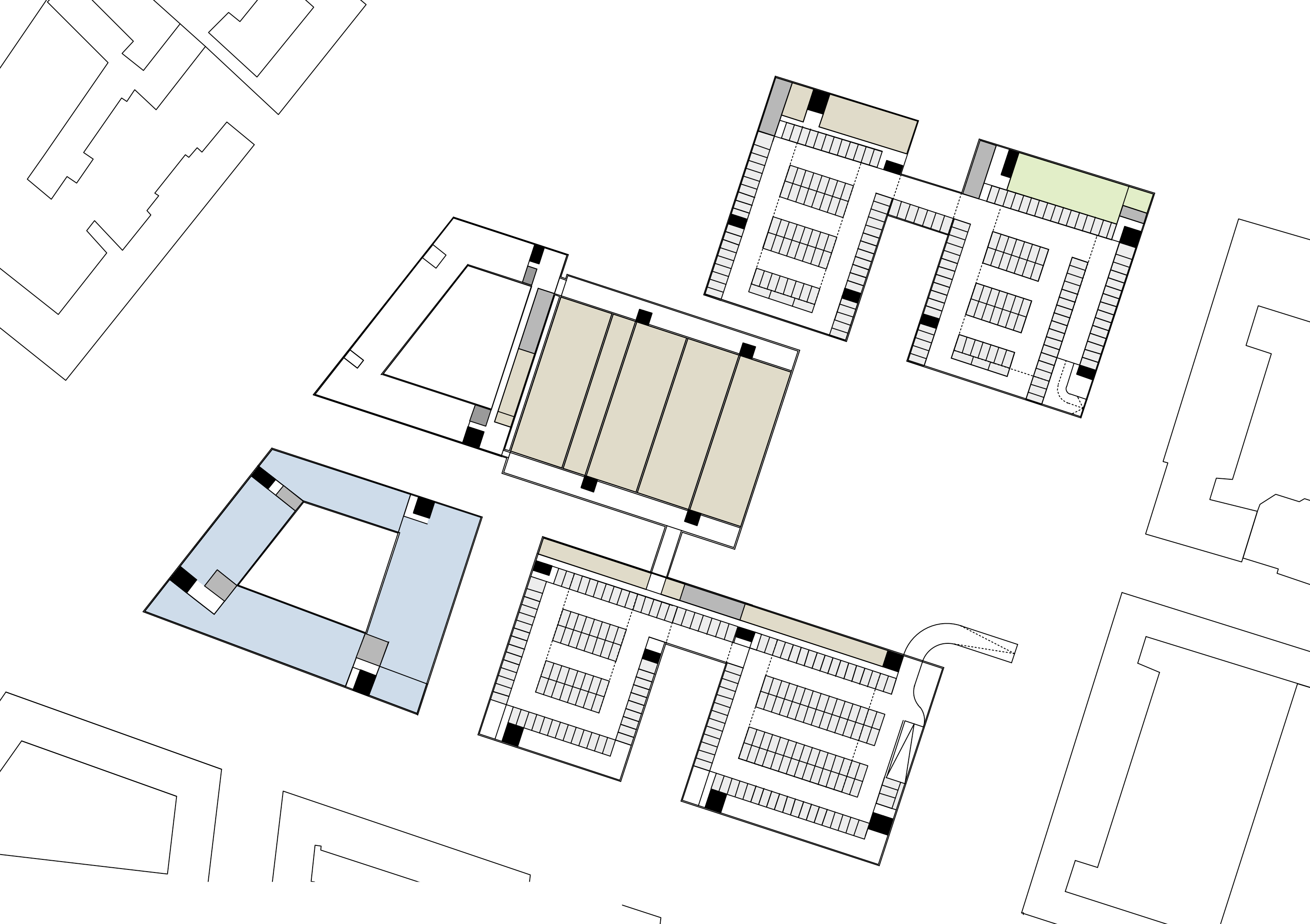
Konzentration Steuerverwaltung München
Wettbewerb 2008, Ankauf

Die Steuerverwaltung in München soll in mehreren Schritten auf dem bestehenden Areal der Deroystraße konzentriert werden. Wir schlagen eine sukzessive Verdichtung in Blöcken vor. Die Blöcke greifen die Struktur des vorhandenen Städtebaus auf und arrondieren die umgebenden Räume. Es entstehen unterschiedlich proportionierte Baukörper, die im räumlichen Zusammenspiel mit Höfen und Straßen Grundlage für ein intensiv und gern genutztes neues Stadtquartier sind.

+

Ein untergeordnetes Wegesystem verbindet die einzelnen Baukörper der Steuerverwaltung untereinander und verdichtet sich zur Mitte der zentralen Grünfläche hin, wo Aufweitungen zum Verweilen einladen. Im Kontrast zur orthogonalen Stringenz von Architektur und Städtebau wird eine weiche, organische Formensprache mit locker eingestreuten Bäumen und Baumgruppen gewählt. Ein Spielplatz für Kinder und eine multifunktionale Spiel- und Sportfläche für Jugendliche sind an die zentrale Durchwegung angegliedert. Retention und Versickerung von Regenwasser der extensiv begrünten Dachflächen wird zu einem zentralen Gestaltungselement in Form eines Teiches mit umgebenden Kiesflächen und bepflanztem Bodenfilter. Ein weiterer Retentionsteich mit Versickerung und eine Versickerungsfläche aus Kies befinden sich in den beiden nicht unterbauten Höfen an der Westseite des Areals.

Auslober
Freistaat Bayern
Staatliches Bauamt München 1
www.stbam1.bayern.de

Verfasser
Robert Rechenauer
Architekt BDA
Jochen Eckert Landschaftsarchitekt

Caroline Hörger
Agnes Hofer-Guoth