Info
R

Robert Rechenauer Architekten

Hans-Sachs-Straße 6  80469 München  Telefon 089 236856‑0
info@rechenauer-architekten.de
1 ⁄ 18 2 ⁄ 18 3 ⁄ 18 4 ⁄ 18 5 ⁄ 18 6 ⁄ 18 7 ⁄ 18 8 ⁄ 18 9 ⁄ 18 10 ⁄ 18 11 ⁄ 18 12 ⁄ 18 13 ⁄ 18 14 ⁄ 18 15 ⁄ 18 16 ⁄ 18 17 ⁄ 18 18 ⁄ 18

Neues Konzerthaus an der Meistersingerhalle in Nürnberg
Wettbewerb 2018, Phase 2

Sanft klingt die kupferne Hülle des Saals im Stadt­raum und lädt so die Bürger und ihre Gäste zum Konzert. Das schim­mernde Metall erinnert an die reiche Hand­werks­tradition der Stadt, aus der einst die Meister­singer von Nürnberg hervorgingen.

+

Ein Garten lud mich ein, Gast ihm zu sein.
aus dem Libretto „Die Meistersinger von Nürnberg“

Das neue Konzerthaus – noch zum Garten, schon zur Stadt gehörend – entwickelt am Kreuzungspunkt der Münchener Straße / Schultheißallee, dem „Ausfallstor der Stadt“, seine ganze Strahlkraft: Die transparenten, klar gegliederten Fassaden zeigen den in Kupferblech gehüllten Konzertsaal, der auf die traditionsreiche Handwerks- und Industriestadt Nürnberg verweist. Die orthogonal ausgerichtete Baustruktur verleiht dem Bauköper eine zeitlose Eleganz und fügt die neue Kubatur selbstverständlich in das bestehende Ensemble der Meistersingerhalle ein.

Die Westseite gibt der Münchener Straße eine Fassung, markiert Beginn und Ende der Straße – und des Luitpoldhains. Die Nordseite, von der Straßenkante der Schultheißallee leicht zurückversetzt, formuliert die Zugehörigkeit zum Park, zugleich vermittelt sie zu dem neu gestalteten Platz auf der Ostseite: dort definiert das Konzerthaus mit der Meistersingerhalle eine neue Eingangssituation. Durch den Neubau von den Emissionen der Straßenkreuzung weitestgehend geschützt, können Besucher wie Gäste ungestört zwischen den Gebäuden flanieren. Der Konzertsaal, der sich als eigenständiger Baukörper markant im Stadtraum abzeichnet, betont die städtebauliche Ausrichtung des Gebäudes auf den Platz mit den Haltestellen des  öffentlichen Nahverkehrs. Im übergeordneten Städtebau korrespondiert er mit den Hochpunkten des erweiterten Umfelds.

Der Baumbestand mit den markanten Eichen wird weitgehend in die neuen Freiflächen integriert. Parterres mit flächigen Gräser-Stauden-Pflanzungen halten die Baumscheiben offen und bilden im Dialog mit den Belagsflächen zwischen Meistersingerhalle und neuem Konzerthaus einen Platz mit archetypischem Gartengrundriss bzw. einen Garten mit repräsentativen Platzqualitäten. Es entsteht ein begehbarer Grünraum, der zum Aufenthalt vor Veranstaltungen, in den Pausen oder auch unabhängig vom Konzertbesuch einlädt. Das historische Belagsraster im Vorfeld der Meistersingerhalle wird als Kontinuum zum neuen Konzerthaus hin fortgeführt und trägt zur Großzügigkeit der Freiflächen zwischen Bestand und Neubau bei. Belange des Baum- und Denkmalschutzes werden damit bewusst in die Neugestaltung der Freiflächen übernommen.

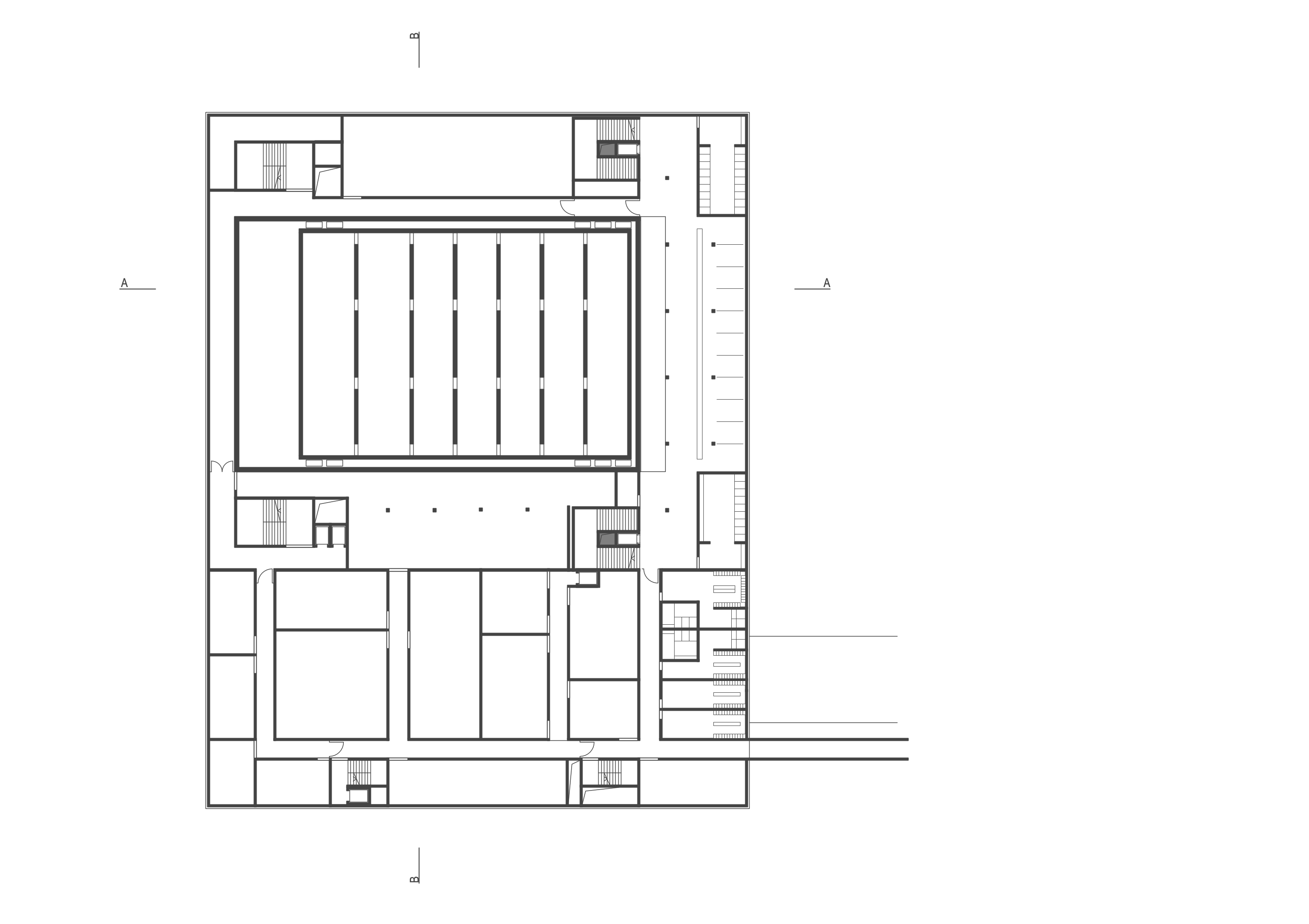
Der das Baufeld bestimmende Sockelbau setzt sich aus zwei eigenständigen Bereichen zusammen: dem öffentlich genutzten Vorderhaus und  „privaten“ Hinterhaus. Der öffentliche Bereich orientiert sich zum Stadtraum, der private Bereich ist um einen innenliegenden Patio organisiert.

Vorderhaus
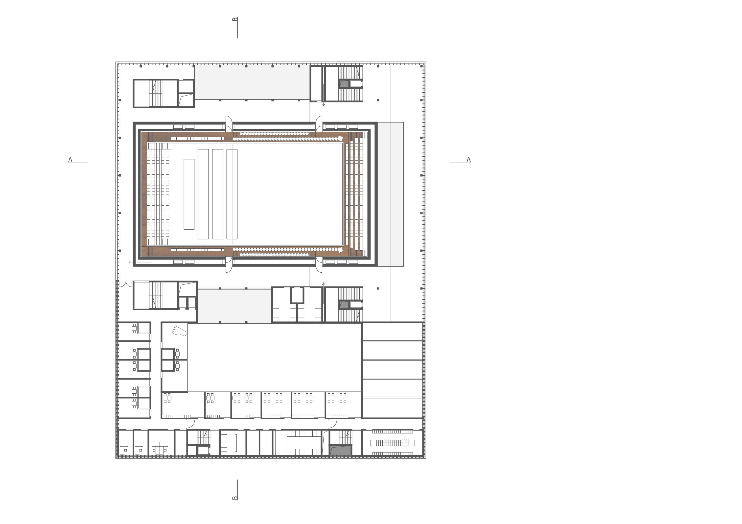
Das Vorderhaus orientiert sich mit dem Konzertsaal zum Platz. Direkt am Eingang befindet sich die Zugangskontrolle, so dass mit dem Eintritt ein freies Zirkulieren im Haus gegeben ist. Gäste ohne Ticket und Gäste, die von Süden kommen, betreten das Gebäude über das Seitenfoyer an der Meistersingerhalle; von dort gelangen sie direkt ins Hauptfoyer mit Kasse und Infothek. Vom Hauptfoyer gelangt man über offene, großzügig angelegte Treppen zu den Garderoben im UG und in die höher gelegenen Foyerebenen.

Foyerebene OG1 bildet die „Beletage“ mit dem Hauptzugang zum Saal, der sich zum Podium flach abtreppt. Dem Zugang ist eine Loggia zugeordnet, die sich zum Platz mit der Meistersingerhalle öffnet. Der Besucher kann sich so im Haus orientieren und die städtebauliche Ausrichtung von innen wie aussen erleben.

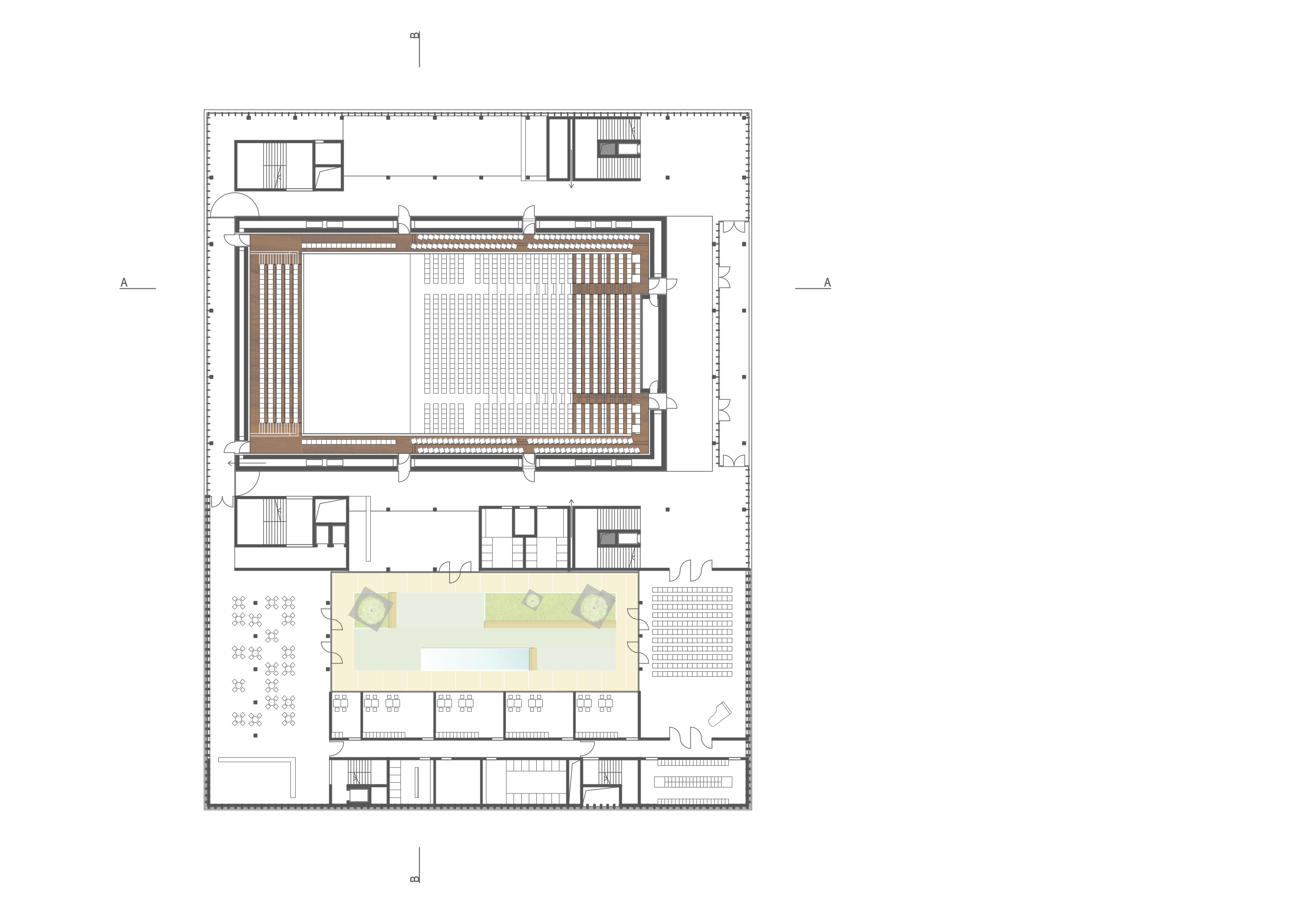
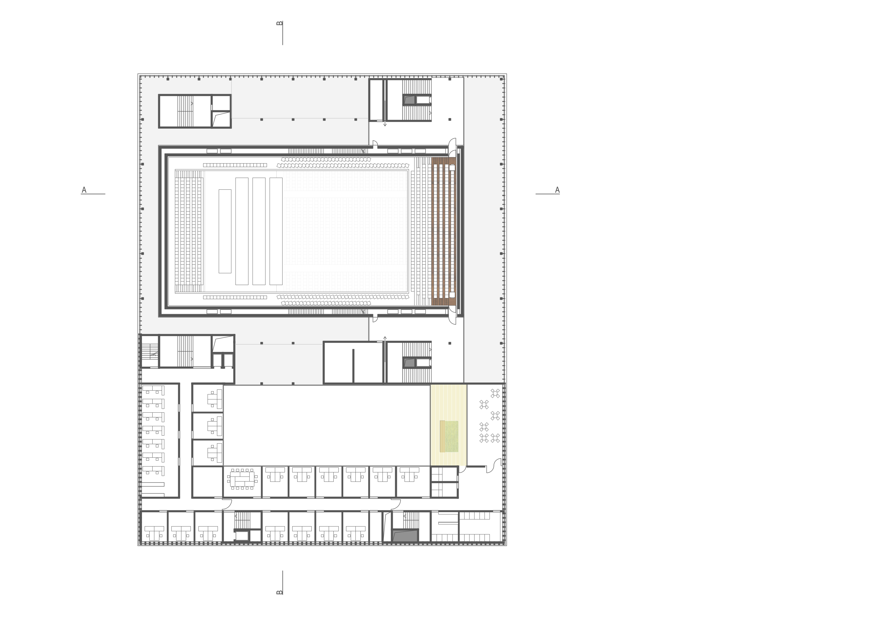
Foyerebene OG2 und 3 erschließen weitere Balkone und Ränge.

Das Thema des Flanierens und Promenierens im Garten setzt sich im Inneren auf allen Foyerebenen fort. Lufträume vermitteln zwischen den Geschossen, Ausblicke zum Aussenraum. Die horizontalen Wandelfächen stehen zu den vertikalen Gehölzen des Parks in einem lebendigen Kontrast. 

Konzertsaal und Akustik
Der Konzertsaal bietet Musikern wie Gästen unvergessliche akustische und optische Musikerlebnisse. Die Proportionen und Strukturen des Saals schaffen eine exzellente Akustik. Wandflächen und Deckenelemente sind nach den erprobten Regeln der Raumakustik strukturiert, sodass eine perfekte Diffusität und optimale Schallverteilung auf allen Plätzen gewährleistet sind. Durch das ansteigende Gestühl sind sowohl im Parkett als auf allen Rängen neben optimalen Hörbedingungen optimale Sichtbeziehungen gegeben. Rollstuhlbenutzer können aufgrund der ebenengleichen Anbindungen die Veranstaltung an verschiedenen Orten genießen.

Die Deckensegel und die seitlichen Reflektoren neben der Bühne bewirken einerseits eine exzellente Hörsamkeit auf der Bühne und andererseits eine gleichmäßige Schallenkung von der Bühne zum Publikum. Die unterschiedlich abstrahlenden Instrumente werden so für alle Hörplätze im Saal im Hinblick auf Klang und Pegel aufeinander abgeglichen. Die offenen Flächen zwischen den Deckensegeln und den seitlichen Reflektoren sorgen für eine zeitliche Staffelung der Schallanteile bei den Zuhörern: so wird ein ausgewogenes Klangbild und natürlich, angenehm klingender Nachklang erzeugt.Die diffus strukturierten Wände mit den unterschiedlichen Strukturtiefen bewirken ein angenehmes klangliches Eingehülltsein in den Klang durch laterale Reflektionen – die prinzipbedingte Stärke des Shoe-Box-Saales – bei gleichzeitiger Auflösung und Vermeidung von starken Einzelreflektion. Die Neigung der Publikumsflächen ist so gewählt, dass genügend Wandfläche für die Schallreflektion bleibt, aber dem Zuhörer gute Direktschallversorgung und gute Sicht auf die Künstler gegeben wird.

Die „Raum-in-Raum-Bauweise“ sorgt für optimalen Schallschutz nach innen und außen. Beide Schalen sind in Massivbauweise errichtet, um durch hohe Massen gute Voraussetzungen für den Schallschutz zu bringen. Die in großen Bereichen hohen Abstände zwischen den Schalen verbessern nicht nur den Schallschutz, sondern ermöglichen während der Bauausführung eine sichere Kontrolle der funktionierenden Trennung der Schalen ohne Schallbrücken. Für die wirksame Entkopplung der inneren Schale – des Konzertsaals – ist diese als Ganzes im Untergeschoss auf Elastomerlagern aufgestellt. Durch diese tieffrequente Auflagerung mit einer Eigenresonanzfrequenz f0 < 4 Hz ist im hörbaren Frequenzbereich ab etwa 25 Hz eine hohe Entkoppelung gewährleistet. Die Saalzugänge sind konsequent als Schallschleusen realisiert. Die Türebenen in den Schleusen sind für optimale Funktion exakt in die massiven Wandschalen eingepasst. Die Laibungsbedämpfung in den Schleusen, mit Entkoppelung der Schalen ausgeführt, unterstützt die Wirkung der Schallschleusen.

Klassische Konzerte, aber auch Show- und Kongressveranstaltungen wollen richtig in Szene gesetzt sein. Licht, Ton, Projektion und vieles mehr sind technischen Medien dazu. Selbst im Bereich der klassischen Musik werden Möglichkeiten für neue, innovative Formate, Experimente und zukünftige Spielformen entwickelt. Der neue Konzertsaal soll für langjährige, nachhaltige Nutzung ausgelegt werden und benötigt dazu auf lange Sicht ausgelegte Installations- und Hängemöglichkeiten. Mit der begehbaren Gitterrostebene über dem Saal und den schallgedämmten Durchführungen für Verkabelung, Seile, Kettenzüge bietet der Saal dafür ideale Voraussetzungen.

Das Podium ist für die Künstler vom Hinterhaus über die Seitenbühnen direkt erreichbar. Alle Lager und Magazine befinden sich mit der Bühnenanlieferung auf einer Ebene. Am Chorpodium sorgen gesonderte Eingänge dafür, dass sich Musiker- und Publikumsverkehr nicht überschneiden.

Hinterhaus
Künstler und Mitarbeiter erhalten am gestalteten Vorplatz im Süden einen eigenen Eingang. Die Bühnenanlieferung erfolgt über eine geschlossene, innenliegende Halle, die den gesamten Vorbereich vor Lärmemissionen schützt. Das Erdgeschoß ist hier vornehmlich den Lager- und Funktionsflächen des Konzerthausbetriebs gewidmet. Die Künstlerlounge mit den Aufentaltsbereichen der Künstler und die Stimmzimmer sind in OG1 und 2 um einen innenliegenden Patio angeordnet. Dirigent, Konzertmeister und Solisten gelangen von dort über den nahe gelegen Erschließungskern mit Aufzug auf kurzem Weg zur Bühne. Dem Patio ist auch der über zwei Geschosse reichende Chorprobenraum zugeordnet. Chorprobenraum und Patio grenzen unmittelbar an die Foyerflächen des Vorderhauses, so dass diese auch dem Publikum zugänglich gemacht werden können. In OG3 sind die Büroräume der Leitung und die Verwaltung Catering untergebracht.

Anbindung Meistersingerhalle
Die Erdgeschossebene des Konzerthauses ist über ein Seitenfoyer mit dem Foyer der Meistersingerhalle gekoppelt. Die Anbindung ist als Kreuzung gestaltet, so dass der Betreiber unterschiedliche Erschließungsszenarien gestalten kann, Durchgang und Zutritt können so entsprechend Erfordernis organisiert werden. Das Bauwerk kann als gesonder-ter Zugang für den Kassenvorverkauf und Zugang von Süden genutzt werden. Im Unter-geschoß sind die beiden Gebäude über einen Technik- und Erschließungsflur miteinander verbunden.

Tragwerk
Die tragende Struktur wird in massiver Bauweise aus Stahlbeton erstellt, die vertikale Last-abtragung erfolgt über Stützen und Wände. Die Fassade im Umgriff des Konzertsaals hat keine tragende Funktion, was eine größtmögliche Transparenz der Konstruktion ermöglicht. Der Konzertsaal ist als Raum-in-Raum-Konstruktion mit einer durchgehend massiven Außenschale konzipiert. Die Innenschale lastet auf der Gründungsplatte über zugängliche linienförmige Elastomerlager ab, die massiven Innenwandschalen sind über einen durchgehenden umlaufenden Zwischenraum vollständig von der Außenschale entkoppelt. Die äußere massive Saaldecke wird von Stahlbetonbindern getragen und nimmt auch die Lasten der entkoppelt aufgehängten inneren Saaldecke (Stahlkonstruktion) auf. Der Raum zwischen diesen beiden Decken ist durchgehend mit voller Stehhöhe zugänglich, so dass eine optimale Flexibilität hinsichtlich Beleuchtung und Bühnentechnik gegeben ist.

Brandschutz
Das geplante Gebäude wird gemäß BayBO der Gebäudeklasse 5 zugeordnet und aufgrund seiner Nutzung als Versammlungsstätte eingestuft. Anstelle der Bildung von Brandabschnitten, die durch Brandwände voneinander getrennt sind, werden fünf feuerbeständig voneinander getrennte Brandzellen gebildet, wobei eine der Brandzellen den Konzertsaal bildet, die zweite ist das geschossübergreifende Foyer, das selbst auch als Versammlungsraum dienen kann, des Weiteren die zwei seitlichen Foyerbereiche (keine Versammlungsräume) und der südlich angeschlossene administrative Trakt mit dem kleinen Saal, den Technik- und Lagerbereichen, Stimmzimmer und Künstlerlounge sowie Büros in den höheren Geschossen. Die Abtrennung erfolgt z.T. über im Brandfall schließende Brandschutztore mit Schlupftüren, die unsichtbar in Taschen untergebracht sind.

Die Foyers sind aufgrund der Deckenöffnungen über die Lufträume geschossübergreifend und bilden somit jeweils einen Rauchabschnitt. Sie erhalten jeweils an oberster Stelle Öffnungen zur Entrauchung.

Aufgrund des Sonderbaustatus als Versammlungsstätte werden sämtliche Rettungswege aus dem Gebäude baulich hergestellt. Die Rettungswege aus dem Konzertsaal werden aus dem Parkett über die seitlich anschließenden  Foyerbereiche (keine Versammlungsräume) zu den jeweiligen Ausgängen (im Brandfall wird im südlichen Bereich über Rauchschutzvorhänge ein Rettungstunnel gebildet) geführt, auch die Rettungswege aus den Rängen und dem Chorpodium führen über die seitlichen Foyerbereiche (Kein Versammlungsraum) zu zwei Treppenräumen, die die vertikalen Rettungswege bilden. Durch das östlich an den Konzertsaal anschließende Foyer (Nutzung als Versammlungsraum möglich) werden keine Rettungswege aus dem Konzertsaal geführt. Zwei offen gestaltete Treppen dienen hier der Erschließung des geschossübergreifenden Foyers und der Ränge. Im administrativen Trakt befinden sich zwei weitere Treppenräume, die den vertikalen Rettungsweg für diese Bereiche darstellen.

Geplant ist der Einbau einer vollflächigen Brandmeldeanlage mit automatischen und nichtautomatischen Brandmeldern und einer Alarmierungsanlage, die eine frühzeitige Branddetektion und Alarmierung gewährleisten und damit eine zügige Evakuierung des Gebäudes im Brandfall begünstigen. Aufgrund der Größe der Versammlungsräume ist die Ausstattung des Gebäudes mit Wandhydranten in ausreichender Zahl geplant, um so einem wirksamen Feuerwehreinsatz zu ermöglichen.

Klima- und Energiekonzept
Das Klima- und Energiekonzept des Gebäudes senkt durch eine optimierte Gebäudehülle und effiziente Raumklimakonditionierungssysteme den Energiebedarf und schafft gleichzeitig optimierten thermischen Komfort bei guten Ausblicken für die Besucher. Durch Einsatz primärenergetisch günstiger Energiequellen wie Fernwärme und Grundwasser sowie erneuerbarer Energie über Photovoltaik auf dem Dach wird der Primärenergiebedarf in der Jahresbilanz minimiert und ein Beitrag zur Nachhaltigkeit des Gebäudes geleistet.

In den Foyerfassaden werden 3-fach Isoliergläser eingesetzt. Hier wird eine neutrale selektive Sonnenschutzbeschichtung auf dem 3-fach Glas aufgebracht, die über 55% Tageslicht, aber nur etwa 26% der solaren Strahlung passieren lässt. In Kombination mit den relativ tiefen Foyerbereichen kann auf einen beweglichen Sonnenschutz weitgehend verzichtet und eine dauerhafte visuelle Verbindung in die Landschaft gewährleistet werden. Nur in den oberen Foyerverglasungen wird ein innenliegender Textilscreen im oberen Bereich mit einem Abstand hinter der Verglasung eingesetzt. Durch die Absaugung der Abluft aus dem Foyer hinter dem Screenbehang wird dieser gekühlt und so eine negative Erwärmung und Abstrahlung in den Raum vermieden. Die an Boden- und Wandflächen der Foyerbereiche absorbierte Strahlung wird über eine Boden- und Wandflächenkühlung direkt aus dem Raum abgeführt, bevor sie die Raumluft dieser Zonen erwärmen kann. Die opaken Betonwerkfassaden (Hinterhaus) erhalten eine Kerndämmung, die verglasten Fassaden des Chorprobenraums sind mit schmalen 3-fach Isoliergläser zwischen den Betonstützen und externen windstabilen Screenbehängen für effizienten Sonnen- und Blendschutz ausgestattet.

Raumklima
Die Grundversorgung erfolgt über Strahlungsheiz- und Kühlsysteme. Hierfür werden integrierte Bauteilaktivierungen in Wänden sowie Fußbodenheiz/- und Kühlsysteme eingesetzt. Die im Untergeschoss positionierten Lüftungsgeräte saugen die Frischluft über an der Seitenfassade positionierte Ansaugöffnungen an und sind mit einer hocheffizienten Wärmerückgewinnung ausgestattet. Zur Steigerung des sommerlichen Komforts wird die Frischluft durch indirekte adiabate Abluftbefeuchtung ohne Einsatz mechanischer Kälte auf komfortable Zulufttemperaturen im Sommer abkühlt. Die Abluft wird direkt über Dach ausgeblasen. Über die vertikalen Steigschächte wird die konditionierte Frischluft im Gebäude verteilt und über jeweils als Druckplenum ausgeführte Räume zu Quellluftauslässe in den ansteigenden Sitzreihen mit niedrigen Geschwindigkeiten zugfrei eingebracht. Die Abluft wird im Deckenbereich gesammelt und über Kanäle in dem Hohlraum zwischen den beiden Schalen der Saalkonstruktion zurück zu den Lüftungsgeräten geführt. Durch die Bodennah eingebrachte Quellluft wird in allen Bereichen eine optimale Luftqualität gewährleistet und thermische Schichtung der Raumluft im großen Luftvolumen erreicht und die Wärmelasten der Personen sowie des Kunstlichtes effizient abgeführt.

Energieversorgung
Über ein Grundwasserbrunnensystem unterhalb der Bodenplatte des Gebäudes wird im Sommer und in der Übergangszeit direkt Kühlenergie für die Flächenkühlungen im Gebäude bereitgestellt. Lediglich in Spitzenhitzeperioden muss auf mechanische Kühlung mit Rückkühlung über die Brunnen umgeschaltet werden. Die Wärmeversorgung erfolgt über den Anschluss an die Fernwärme. Somit werden sehr gute Primärenergiekennwerte für die Wärme- und Kälteversorgung erreicht.

Das Dach des Konzertsaals wird zur solaren Stromerzeugung genutzt. Flach montierte Photovoltaikmodule oberhalb der wasserführenden Dachhaut ermöglichen eine optimale Flächenausnutzung, da sich die Module nicht gegenseitig verschatten. Durch eine gute Hinterlüftung zur Begrenzung der sommerlichen Modultemperaturen wird ein optimierter Anlagenbetrieb ermöglicht. Die mit hocheffizienten Modulen ausgeführte Anlage kann somit Strom für den Gebäudebetrieb bereitstellen bzw. in das öffentliche Netz einspeisen.

Fazit: Das entwickelte Gebäudekonzept ist nachhaltig und integraler Bestandteil des architektonischen Konzepts. Aufgrund der Summe der Maßnahmen wird der Verbrauch an Ressourcen signifikant reduziert und es ein hohes Maß an Komfort für die Besucher und Nutzer erreicht.

Bauherr
Stadt Nürnberg 

Verfasser
Robert Rechenauer Architekt BDA

Silke Feurle
Iuliia Aulkina

Kübertlandschaftsarchitektur
LWPI - zur Lage Wedel Partnerschaft mbB, Akustik-, Bühnen- und Veranstaltungstechnik
Lieb Obermüller Partner mbB, Tragwerksplanung
DAI - Dorn Architekten Ingenieure GmbH für Brandschutz
Transsolar Energietechnik GmbH