Info
R

Robert Rechenauer Architekten

Hans-Sachs-Straße 6  80469 München  Telefon 089 236856‑0
info@rechenauer-architekten.de
1 ⁄ 8 2 ⁄ 8 3 ⁄ 8 4 ⁄ 8 5 ⁄ 8 6 ⁄ 8 7 ⁄ 8 8 ⁄ 8

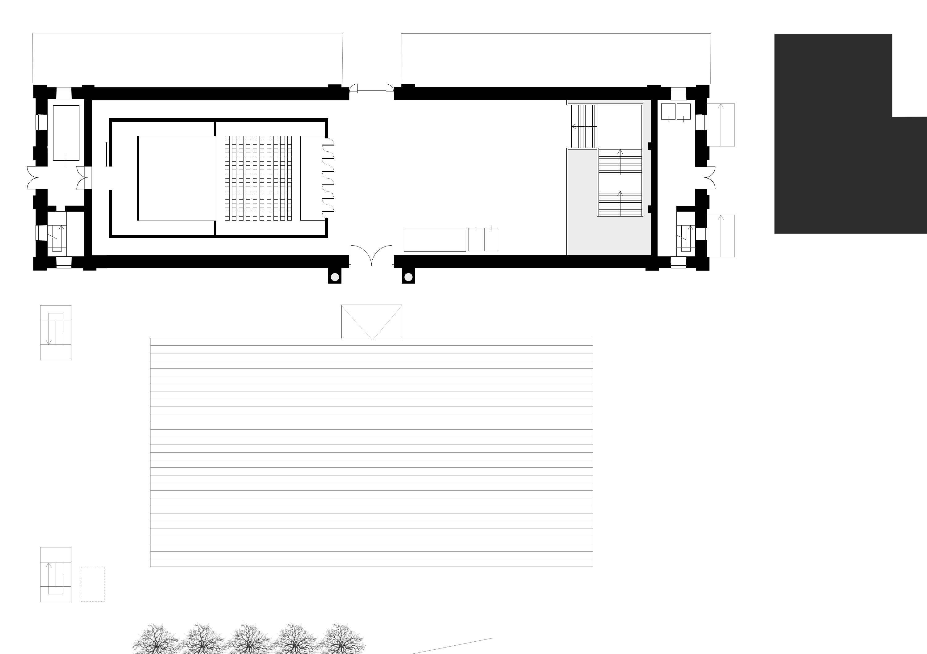
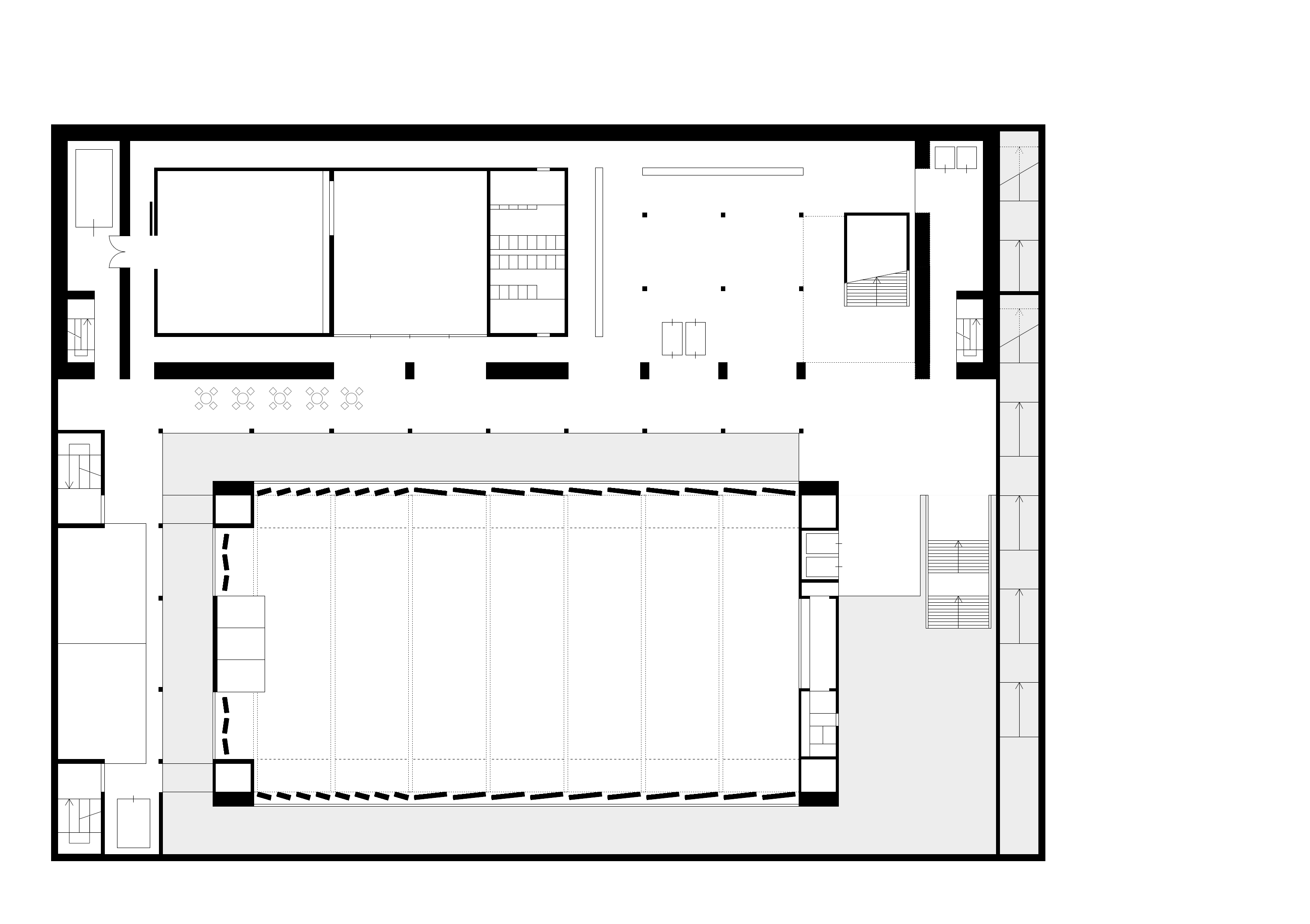
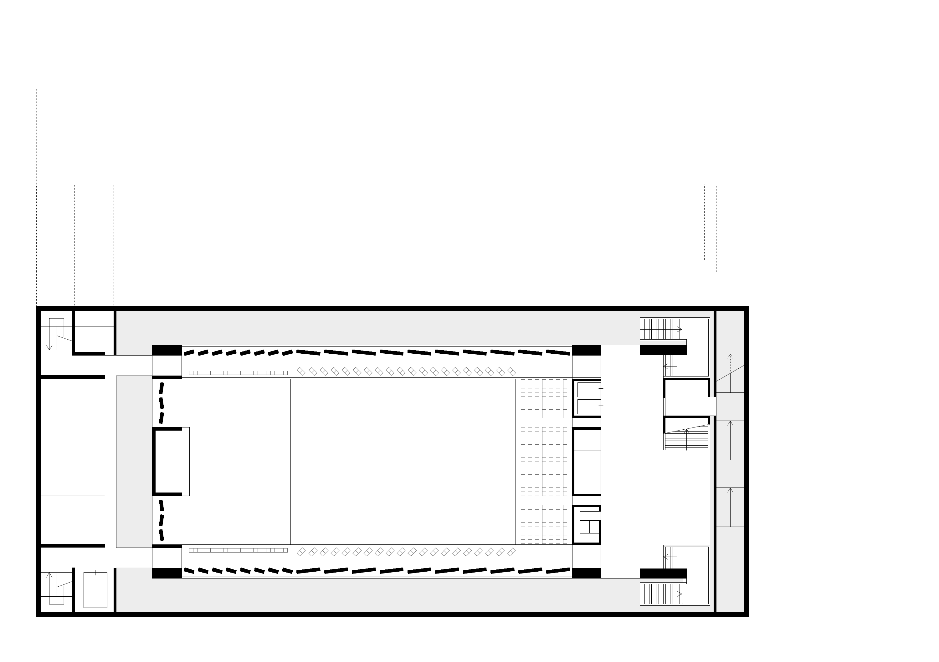
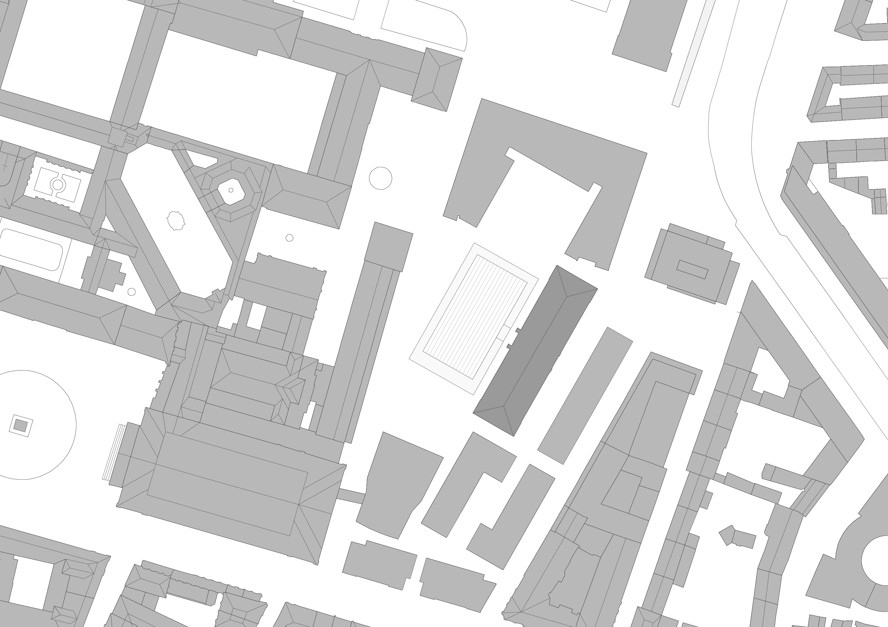
Kulturprojekt Marstall München
Wettbewerb

Die alten Griechen schrieben Orpheus die Erfindung der Musik zu. Aus Liebe zu Eurydike stieg er in die Unterwelt ab. Mit seinem bezaubernden Gesang und Lautenspiel betörte er die Götter.

+

Der neue Konzertsaal, das „Orpheum“, wird in einem neuen eigenständigen Baukörper unterhalb des Marstallplatzes platziert. Seine Kontur zeichnet sich dezent an der Oberfläche ab. Umlaufend begehbare Lichtgassen definieren die Grenze. Der Platz wird so selbst zur Spielfläche. Die Wände des Saals sind in Stelen aufgelöst. Schräg gestellten Wandelemente sorgen für eine ausgewogene Raumakustik, Tageslicht tritt gefiltert nach innen.

Auslober
Freistaat Bayern
Staatliches Bauamt München 1
www.stbam1.bayern.de

Verfasser
Robert Rechenauer
Architekt BDA

Odile Ullrich
Harald Gasmann

Kübertlandschaftsarchitektur
Lieb Obermüller Partner
Kuehn Bauer Partner
Theapro