Sanierung und Erweiterung Kunstuniversität Graz
Wettbewerb
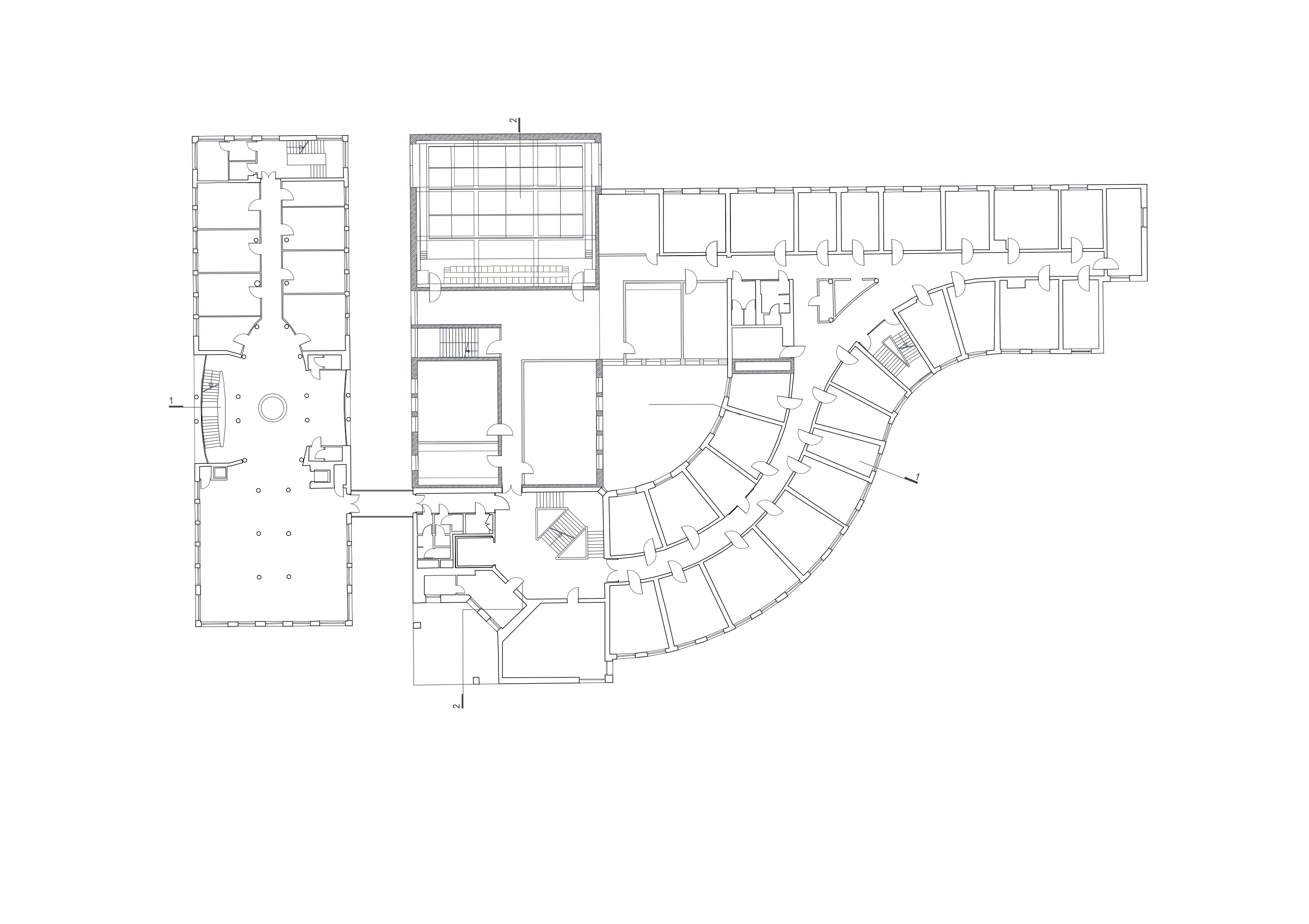
Der Umbau bietet die Gelegenheit, die Kunstuniversität städtebaulich mit dem Palais Meran und dem MUMUTH zu verbinden. Der Campus wird für alle erlebbar. Die bestehende Tiefgarageneinfahrt, ein Geländesprung und der Kroisbach blockieren dies zur Zeit.
Dafür soll die Einfahrt vom Eingang an der Brandhofgasse auf die Rückseite des Gebäudes in die Hauslabgasse verlagert werden. Dies ermöglicht einerseits die Gestaltung einer attraktiven Eingangssituation, andererseits den konkreten Brückenschlag in den Park und weiter zum Palais Meran. Mit Verlegung der Tiefgarageneinfahrt erhält der Vorplatz eine größere Flächenressource, welche das Potential und die städtebauliche Grundlage für eine spätere Erweiterung der Kunstuniversität zum Vorplatz hin darstellt. Eine Brücke mit Sitzgelegenheit erweitert die effektive Nutzung des Vorplatzes bis an die Grundstücksgrenze und schafft zudem eine attraktive Wegeverbindung zum Palais Meran. Die Freiflächen von Vorplatz, Passage und Innenhof werden über einen einheitlichen Plattenbelag gestalterisch zusammengeführt. Das Konzept der Erweiterung sieht zwei unterschiedliche Herangehensweisen vor:
1) Aufstockung des bestehenden Traktes entlang der Hauslabgasse in Leichtbauweise
2) Erweiterung als Massivbau mit Neubau der Aula auf den Spuren des Bestandes

Der Neubau gewährleistet die nachhaltige Erweiterung des Bestandes. Optimal erfüllt er alle gestalterischen, funktionellen und konstruktiven Ansprüche und wirkt gleichzeitig als Garant für einen neuen architektonischen Auftritt. An der Hauslabgasse zeichnet er sich als eigenständiger Baukörper dezent im Stadtbild ab. Gestalterisch bildet dabei die Aula einen Sockel, der Unterrichts- und Veranstaltungsbereich eine „Laterne“, welche im Quartier einen städtebaulichen Akzent setzt. Insbesondere die Neustrukturierung von Aula und Foyer bieten einen zeitgemäßen, wettbewerbsfähigen Hochschulbetrieb sowie eine Erweiterung der Probe- und Auftrittsmöglichkeiten ohne Funktionsmängel und teure Kompromisse bei der Adaptierung des Bestandes in Kauf zu nehmen. Stattdessen wird eine durchgängige, funktionale und kostenoptimierte Planung umgesetzt.
Um in allen Geschossen Barrierefreiheit und durchgängigen Transport großer Instrumente wie Pauken, Marimbaphon, Flügel, Harfe zu gewährleisten, wurden die bestehenden Geschosshöhen übernommen. Veranstaltungsräume, die größere Raumhöhen benötigen, sind entweder im EG oder in OG3 situiert. Ein neues Treppenhaus bietet eine gute Erschließung, die Einhaltung der Rettungswege sowie eine Steuerbarkeit des Zutritts zum oberen Veranstaltungsbereich. Da die Aula zweigeschossig ausgebildet ist, erhält sie einen Rang, der über OG1 erschlossen wird; direkt angrenzende Nebenräume ermöglichen den Studenten einen professionellen Auftritt.
Die massive Bauweise bildet neben energetisch sinnvollen Speichermassen eine gute Grundlage für wirkungsvollen Schall- und Brandschutz. Luft- und Körperschall werden mittels Abhangdecken, Vorsatzschalen und schwimmendem Estrich gemäß Nutzung der Räume verbessert. Sämtliche Installationen werden über die Flure geführt. Zur Minderung von stehenden Wellen, Flatterechos oder ausgeprägten Raummoden erhalten die neuen Unterrichts-, Ensemble und Überäume mindestens eine schräggestellte Wand. Damit wird auch ohne großflächige Ausstattung mit aufwändigen Diffusoren die räumliche Klangverteilung verbessert. Raumakustik-Maßnahmen werden an den Wänden und den Decken der Räume so ausgeführt, dass eine ausgewogene Schallverteilung, gute Klangverteilung und ausreichende Pegelminderung (Gehörschutz) gegeben sind.
Im Zuge der Erweiterung wird der Bestand saniert. Die Kubaturen des Bibliothekstrakts, des turmartigen Eingangsbauwerks und des geschwungenen Institutsflügels werden dabei unverändert in die Planung übernommen. Die Fenster- und Belichtungsflächen des Bestandes bleiben erhalten, sodass aufwändige Umbauten unterbleiben. In einem zweiten Bauabschnitt könnten der Bibliothekstrakt und der turmartige Bau am Vorplatz erweitert und über eine Passage an den ersten Bauabschnitt angeschlossen werden. Mit dem Rückbau der bestehenden Tiefgarageneinfahrt wird unter dem Vorplatz die bestehende Tiefgarage erweitert. Das Tragwerk wird dabei so ausgelegt, dass auf dem Vorplatz ein Erweiterungsbau realisiert werden kann. Im Untergeschoss werden damit Flächen frei, die neben der Erschließung für die Errichtung von zusätzlichen Technikflächen herangezogen werden. Unerwünschte Technikaufbauten auf den Dächern lassen sich so vermeiden.
Tragwerk
Der Neubau des Aula-Gebäudes ist als Massivbau mit einer Tragstruktur aus Stahlbeton vorgesehen. Die weit gespannten Geschossdecken lasten im Regelfall über die Außenwände und die westliche Wand des Mittelflurs ab. Im Bereich über der Aula werden die Decken mittig von einem wand-artigen Träger zwischen den beiden Sälen in OG 3 abgehängt. Die vorhandene Bodenplatte der Tiefgarage bleibt im Bereich des Neubaus bestehen und wird im Bereich der neuen Tiefgaragenabfahrt ergänzt. Nach Erfordernis wird die Gründung punktuell durch Injektionen oder Pfähle verstärkt. Die neue Tiefgarage wird mit einer tragender Bodenplatte und einem Stützen-Unterzugsystem erstellt. Das Tragsystem ist hier unabhängig vom angrenzenden Bestand. Die Aufstockung in OG 2 im Bereich des Traktes entlang Hauslabgasse ist, wie in der Machbarkeitsstudie empfohlen, in Holzständerbauweise vorgesehen. Die bestehende Tragstruktur kann hierdurch im wesentlichen unverändert beibehalten werden.
Klima- und Energiekonzept
Das Klima- und Energiekonzept setzt auf eine optimierte Gebäudehülle sowie einfache aber effiziente Lüftungs- und Raumklimakonditionierungssysteme, was sowohl den Gebäudeenergiebedarf senkt und gleichzeitig optimierten Komfort für die Nutzer in Bestands- und Erweiterungsbereichen schafft. Die Kombination mit einer kontinuierlichen mechanischen Frischluftversorgung gewährleistet die Temperatur- und Feuchteanforderungen für Nutzer und Instrumente.
Die Grundklimatisierung der Büro- und Unterrichtsräume im Sommer erfolgt in den Neubaubereichen über eine Bauteilkühlung in den freien Geschossdecken. In die Decken sind akustisch wirksame Blähglas-Granulatstreifen eingelegt, die eine gute akustische Raumdämpfung erzielen, ohne die Leistungsabgabe der Betonkernaktivierung zu stark zu beeinträchtigen. Zusätzlich können akustisch aktivierte perforierte Metalldeckensegel, die Kühlleistung der Betondecken nur geringfügig beeinträchtigen von der Decke abgehängt werden. In den Bestandsbereichen wird eine stille Komfortkühlung über eingeputzte Kapillarmattensysteme realisiert, die aus der Flurzone versorgt werden und im Raum kaum auftragen. Die Bauteilaktivierung bzw. Kapillarmattensysteme können im Sommer vorwiegend direkt über ein unter der neuen Tiefgaragenbodenplatte installiertes Erdsondensystem gekühlt werden. Die Betondecken speichern diese Kühlenergie über mehrere Stunden und sorgen so für eine Glättung des Kühllastprofils über Tag und Nacht und behagliche Raumtemperaturen in den Büros.
Durch die ganzheitliche Optimierung des Gebäudes wird ein ausgezeichneter Komfort für die Nutzer bei einfacher Anlagentechnik und sehr geringem Energiebedarf sichergestellt. Durch die Nutzung von primärenergetisch günstiger Fernwärme und dem Einsatz regenerativer Energiequellen wie Geothermie und Sonnenenergie wird der Primärenergiebedarf minimiert und ein klarer Beitrag zur Nachhaltigkeit des Gebäudekomplexes geleistet.