Info
R

Robert Rechenauer Architekten

Hans-Sachs-Straße 6  80469 München  Telefon 089 236856‑0
info@rechenauer-architekten.de
1 ⁄ 20 2 ⁄ 20 3 ⁄ 20 4 ⁄ 20 5 ⁄ 20 6 ⁄ 20 7 ⁄ 20 8 ⁄ 20 9 ⁄ 20 10 ⁄ 20 11 ⁄ 20 12 ⁄ 20 13 ⁄ 20 14 ⁄ 20 15 ⁄ 20 16 ⁄ 20 17 ⁄ 20 18 ⁄ 20 19 ⁄ 20 20 ⁄ 20

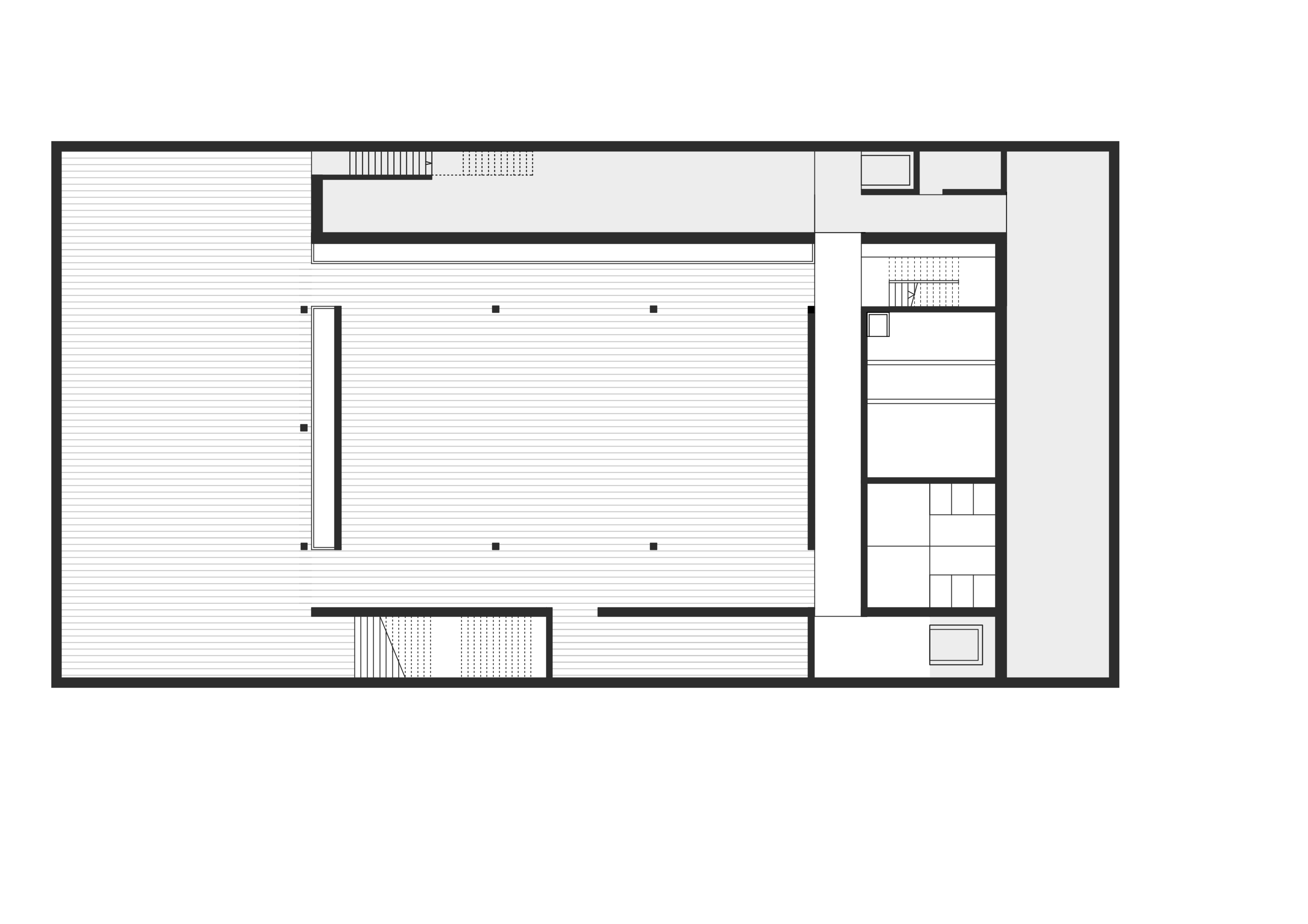
NS-Dokumentationszentrum München
Wettbewerb 2009, Engere Wahl

Unser Entwurf präsentiert sich als ein nach allen Seiten hin lichtes Haus, das zur offenen Auseinandersetzung mit der Geschichte des National­sozialismus einlädt. Der transparente Körper ist eingehüllt in eine Struktur von lichtdurchlässigen Lamellen aus Buntmetall. Die beweglichen Lamellen nehmen das wechselnde Licht des Himmels in sich auf, strahlen die Farben zurück und lassen etwas vom Innenleben erahnen. Die feine offene Struktur setzt sich von der pathetischen Monumentalität der benachbarten NS-Architektur ab.

+

Von innen geben die Lamellen vielfältige Sichtbeziehungen in die Umgebung frei. Die Ausblicke sind dabei bewusst keiner Hierachie unterworfen. Nicht inszenierte Blickachsen bestimmen die Sicht, sondern mit jedem Standort wird aufgrund der Lamellenstellung ein anderer Aspekt der Topographie fokusiert oder kollimiert. Die Höhe, die Blickrichtung und die Entfernung zur Fassade stellen die Elemente der Topographie in immer neue Zusammenhänge. Die Themen des Hauses werden so mit der historischen Topographie verknüpft und seine Orte im Haus verankert. Von der frei zugänglichen Dachterrasse bietet sich der uneingeschränkte Ausblick auf den Ursprungs- und Aufstiegsort der nationalsozialistischen „Bewegung“.

Die repetitive Lamellenhülle unterstreicht die solitäre Wirkung der Architektur, die sich so in den von Fischer und Sckell vorgeprägten städtebaulichen Typus der offenen Gartenstadt einklingt. Die Situierung des Eingangs im Westen bricht bewußt mit der Tradition der achsialen Erschließung von der Hauptstraße. Von der Brienner Straße betritt man das Gebäude über einen Vorplatz. Die Ruinen des „Ehrentempel“ und die Präsenz des ehemaligen „Führerbau“ stimmen den Besucher zur offenen Auseinandersetzung mit der Geschichte ein, die sich mit dem neuen Dokumentationszentrum am Standort des ehemaligen „Braunes Haus“ manifestiert.

Auslober

Landeshauptstadt München
Baureferat

www.muenchen.de   

Verfasser
Robert Rechenauer Architekt BDA
Horst Kübert
Landschaftsarchitekt BDLA

Caroline Hörger
Agnes Hofer-Guoth
Michael Striebel
Veronika Markus