Info
R

Robert Rechenauer Architekten

Hans-Sachs-Straße 6  80469 München  Telefon 089 236856‑0
info@rechenauer-architekten.de
1 ⁄ 14 2 ⁄ 14 3 ⁄ 14 4 ⁄ 14 5 ⁄ 14 6 ⁄ 14 7 ⁄ 14 8 ⁄ 14 9 ⁄ 14 10 ⁄ 14 11 ⁄ 14 12 ⁄ 14 13 ⁄ 14 14 ⁄ 14

Neubau Stadtteilkulturzentrum Allach-Untermenzing
Sanierung des ehemaligen Vereinsheims

Allach entwickelte sich entlang einer alten Land­straße, die von Pasing über Unter­menzing nach Ingolstadt führte. Im Norden waren die als Ein­firsthöfe gestal­teten Bauten meist giebel­­ständig, im Süden trauf­ständig zur Straße orientiert. Die ehe­malige Stroh­be­deckung be­dingte eine steile Dach­form, die das Orts­bild prägte. 

+

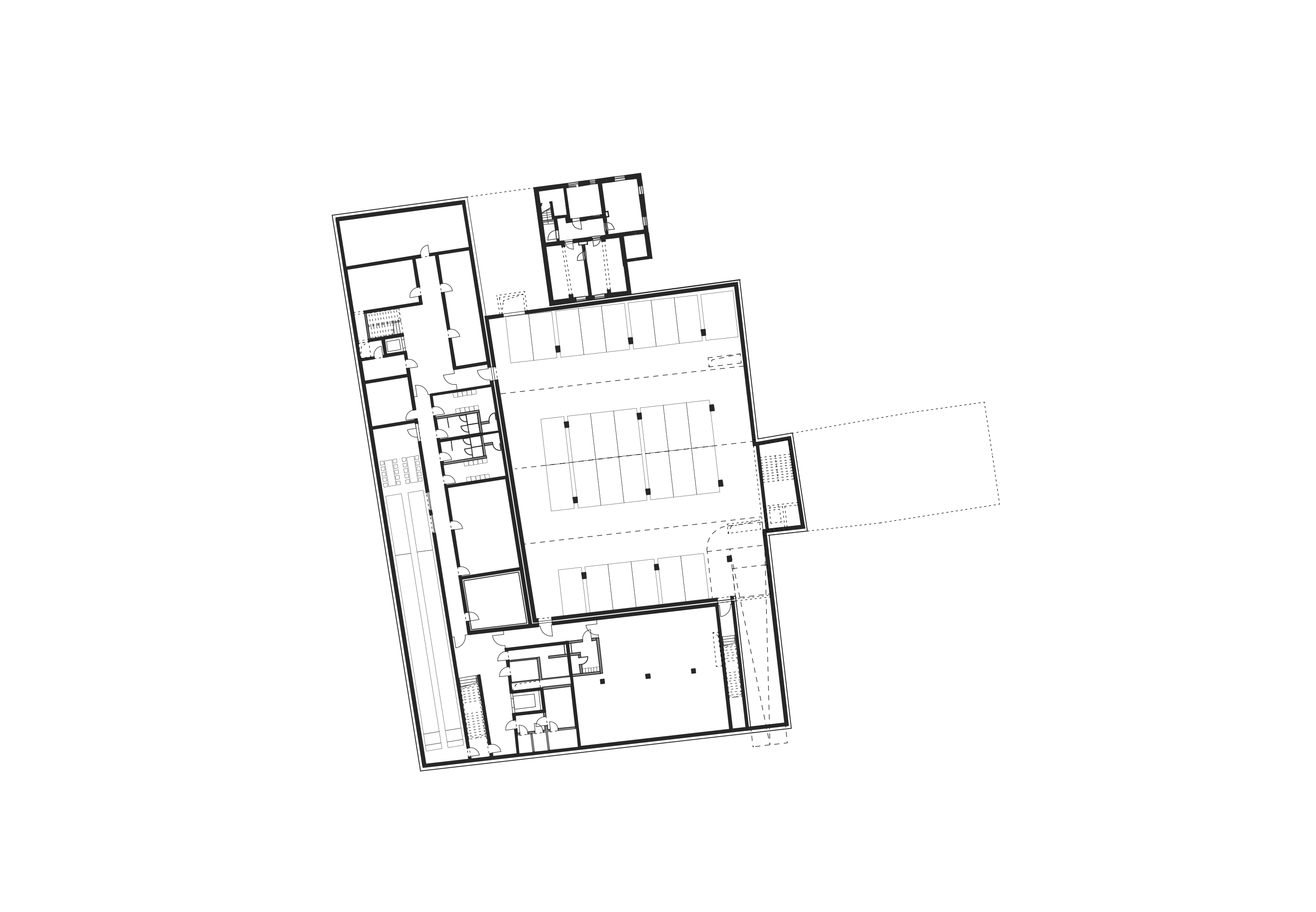
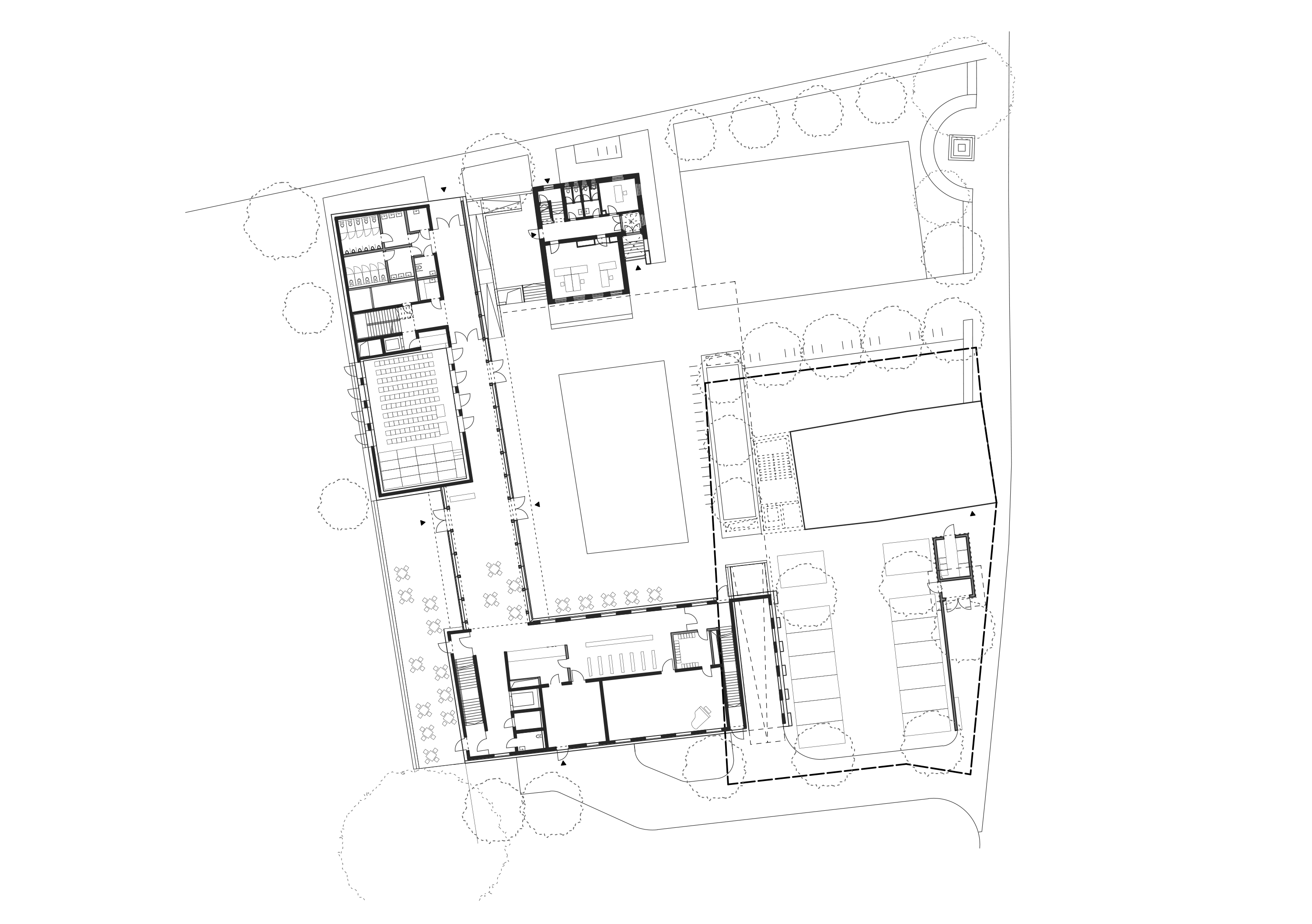
Die neuen Baukörper mit den steilen Sat­tel­dächern ver­ste­hen sich als Re­mi­nis­zenz an die alte Orts­struktur. Die Giebel- und Trauf­stän­dig­keit der Haupt­­­trak­te spie­geln da­bei die his­to­ri­schen Ent­wick­lung wie­der und er­zäh­len so die bau­liche Ge­schich­te von Allach weiter. Sie bil­den mit dem ehe­ma­li­gen Ver­eins­heim und dem denk­­­mal­­ge­schütz­ten Gebäude an der Evers­­busch­straße 159 ein En­sem­ble. Die Trakte werden über einen ein­ge­schos­si­gen Flach­bau als durch­gängige Per­go­la er­schlos­­sen. Der Ver­bin­dungs­bau bin­det städte­bau­lich das Ver­eins­heim in die Ge­samt­­struk­­tur ein und de­fi­niert mit dem be­steh­en­den An­wesen Evers­busch­straße 159 einen Vor­platz, der als Frei­fläche und Ver­tei­ler allen Bau­tei­len dient. Über die städte­bau­liche Zä­sur zwi­schen den beiden Trak­ten bleibt für den an­kom­men­den Be­su­cher der Grün­raum der Würm er­leb­bar. Die Archi­tek­tur und seine Funktionen be­stim­men die Nar­ra­ti­ve. Die Bau­struk­tur aus ver­schie­de­nen ge­glie­der­ten Bau­teilen soll be­ste­hen­de Natur­räume schützen, Stadträume schaffen, alte Geschichten wei­ter­er­zäh­len und die neuen Funktionen erlebbar machen.

Dem Großen Saal im Obergeschoss des Süd­trakts kommt bei kulturellen Ver­an­stal­tun­gen eine be­son­de­re Be­deu­tung zu. Die Raum­ge­stal­tung prä­gen V-förmig verschränkte Binder aus Holz. Groß­for­ma­ti­ge Fenster bie­ten Aus­blick auf den Vor­platz und nach Allach. Sie versorgen den Saal mit Tageslicht, das im Jahres- und Ta­ges­ver­lauf ab­wechs­lungs­reiche Licht­­stim­mun­gen bietet. Eine Ver­dunke­lungs­an­lage erweitert die Mög­lich­kei­ten für freies szenischen Arbeiten. Die Regie erfolgt mobil, so­dass der Saal kom­plett ebenerdig be­spielt werden kann. Als Bo­den­be­lag ist ein wi­der­stands­­hi­ges Par­kett aus Eiche vor­ge­se­hen. Der Saal soll ein­heit­lich mit einer hel­len Lasur ge­stri­chen wer­den, die die Struk­tur der Holz­­ein­­bau­­ten sicht­bar und so den Ver­an­stal­tern Freir­aum für das eigene Gestalten läßt.

Gebäudedaten
2019 Planungsbegin
2020 Vorkonzept (Projektstand)
1.560qm Nutzfläche
3.220qm BGF Neubau
1.105qm BGF Tiefgarage      
496qm BGF Vereinsheim      

Funktionen
Foyer, Garderobe, Küche
Großer Saal, 200-260 Personen
Kleiner Saal, 120 Personen
Gruppenräume
Gymnastik- und Musikraum
Kegelbahn
Verwaltung
Wohnung
Tiefgarage

Aufgrund der Corona-Pandemie wurde das Projekt zurückgestellt.

Auftraggeber
Landeshauptstadt München
Baureferat

Nutzer
Landeshauptstadt München
Kulturreferat 

Architektengemeinschaft 
Stadtteilkulturzentrum
Rechenauer Bloß

Robert Rechenauer 
Architekt BDA
Entwurf und Planung 

Architektur + Baumanagement 
Christopher Bloß GmbH
Kostenermittlungen

Mitarbeit 
Silke Feurle (Projektleitung)
Iuliia Aulkina
Yekaterina Martinez Panina
David Lachermeier 
Darius Brojatz
Sabrina Ascherl