Stadttheater Landshut, Generalsanierung und Erweiterung
Wettbewerb 2019, Anerkennung
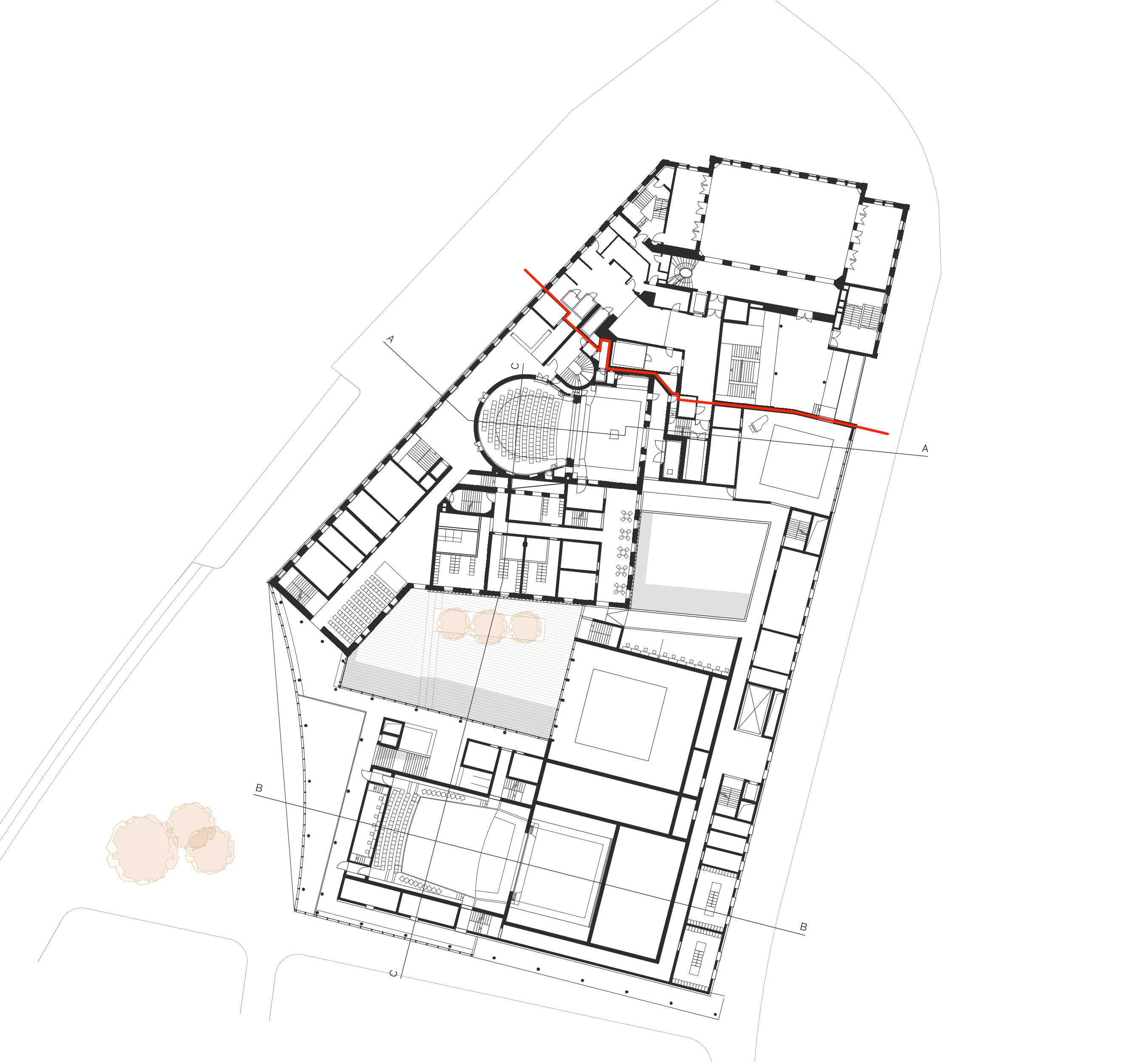
Das neue Stadttheater orientiert sich zur Isarpromenade und wird so fester Bestandteil der Stadtsilhouette von Landshut. Der Bereich des Foyers, der an die Ringelstecherwiese grenzt, geht über in eine großzügig überdachte Wegeverbindung zur Wittstraße. Das den Weg begleitende Dach lädt zum Besuch des Theaters ein.
Der bestehende Bernlocherkomplex ist zum Ländtorplatz und zur Isar hin klar artikuliert, wohingegen die Ränder zur Ringelstecherwiese und zur historischen Altstadt ausfransen und diffus wirken. Ziel ist es deshalb, den bestehenden Komplex durch die Erweiterungsbauten zu einer Gesamtform zu arrondieren.
Entlang der Wittstraße schließen die neuen Gebäudeteile den Blockrand. Dabei werden die Traufhöhen des bestehenden Bernlocherkomplexes aufgegriffen. An der Fuge zwischen altem und neuem Blockrand liegt das Foyer, welches mit den Gebäudeteilen im Inneren des Blocks unter einem Dach zusammengebunden ist. Diese Binnenstruktur, die sich in ihrer Höhe an der niedrigeren ehemaligen Brauerei orientiert - gliedert das Innere des Komplexes in zwei Höfe. Der Theaterhof, an den das Foyer, die große Probebühne und die Aufenthaltsflächen für Künstler und Verwaltung angrenzen, ist öffentlich zugänglich und kann auch für Open-Air-Veranstaltungen genutzt werden. Der Anlieferhof wird baulich gefasst, verbleibt aber an der Wittstraße, wo er den Gebäudebestand und die neuen Erweiterungsbauten gleichermaßen bedient. Die geschlossene Bebauung gewährleistet den Lärmschutz beim Aus- und Beladen der Bühnenausstattungen.
Die Sanierung und Erweiterung des Gebäudekomplexes hat neben der Schaffung optimaler Räume auch die Ordnung und Strukturierung des derzeit verbauten Bestandes zum Ziel. Durch die Gliederung der Funktionen um den öffentlichen Theaterhof und den nicht-öffentlichen Anlieferhof, werden die Besucherströme von den Wegebeziehungen der Künstler und technischen Mitarbeiter getrennt. Im öffentlichen Bereich empfängt das neue Foyer die Besucher auf Stadtebene und leitet über eine großzügige Treppe auf die Beletage. Die Beletage stellt die verbindende Ebene zwischen Erweiterung und Bestand dar und leitet vom Rang des Großen Hauses über zum Foyer der Studiobühne. Hier besteht wiederum die Möglichkeit der Anbindung an das Foyer der Bernlocher-Säle. Das nicht-öffentliche Hinterhaus ist ebenso organisiert: Während die Anlieferung auf Straßenniveau erfolgt, stellt das 1. Obergeschoss die Verbindung zwischen Großem Haus und Studiobühne her. Neben der kleinen Probebühne, die sich in unmittelbarer Nähe zur Studiobühne befindet, sind Umkleiden, Abendmasken und Werkstätten hier ebenengleich angeordnet und sorgen so für kurze Wege und ermöglichen Synergien. Optional besteht die Möglichkeit, die kleine Probebühne vom Foyer der Bernlocher-Säle aus zugänglich zu machen.

Die Qualitäten der historischen Gebäudeteile werden herausgearbeitet. So wird der noch vorhandene, aber zwischenzeitlich verbaute Umgang zwischen ehemaliger Brauerei und Theaterbau wieder freigelegt, was gleichzeitig für kurze Wegeverbindungen zwischen Verwaltung und Anlieferung sorgt. Die historische Gewölbehalle in der Darre wird als Aufenthaltsraum für Künstler und Verwaltung ausgebildet. Durch die abgesenkte Geländehöhe des angrenzenden Theaterhofes, besteht eine direkte Verbindung zum Außenraum. Die Büros des künstlerischen Betriebs und der Verwaltung sowie die Gästewohnungen sind in den klassizistischen Gebäudeflügeln an der Isar untergebracht.
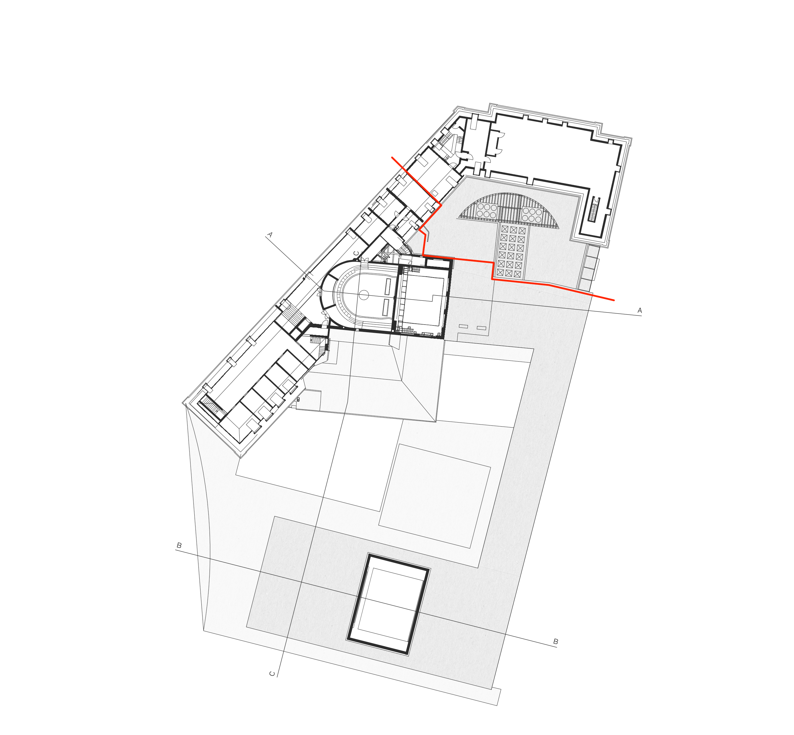
Theaterraum Großes Haus
Der Raum bietet Künstlern wie Gästen unvergessliche Theatererlebnisse: Die Proportionen und Strukturen des Saals bieten optimale Bedingungen für das szenische Arbeiten und eine hervorragende Akustik. Zur Optimierung der Sichtbeziehungen wurde der Zuschauerraum zweigeschossig organisiert um geringe Abstände zur Bühne zu ermöglichen. Gleichzeitig sorgt das abfallende Gestühl in Parkett und 1. Rang für optimale Sicht- und Hörbedingungen. Deckensegel und seitliche Reflektoren bewirken eine exzellente Hörsamkeit und gleichmäßige Schallenkung. Rollstuhlbenutzer können aufgrund der ebenengleichen Anbindungen in Parkett und 1. Rang die Veranstaltung an verschiedenen Orten genießen. Die Bühne ist für die Künstler und Techniker vom Hinterhaus über die Seiten- und Hinterbühne direkt erreichbar. Der Zugang zum Orchestergraben liegt in unmittelbarer Nähe zu den Umkleiden. Technikbrücken und -stege ermöglichen im Bühnen wie im Zuschauerraum vielfältige Möglichkeiten für szenisches Arbeiten.
Theaterraum Studiobühne
Der historische Raum des Bernlocher-Theaters soll denkmalgerecht auf seine frühere Fassung zurückgeführt werden. Im Hinblick auf Komfort und optimale Sichtbeziehungen zur Bühne werden die Sitzplätze jedoch neu angeordnet. So stehen im Parkett künftig 160 Sitzplätze zur Verfügung, während in den Rängen jeweils nur die erste Reihe genutzt wird. Die zu geringe Höhe des Orchestergrabens wird korrigiert indem eine neue Decke über EG in entsprechender Höhe eingezogen wird. Die Zugänglichkeit zum Orchestergraben erfolgt künftig über eine Treppe aus dem EG.
Fassade
In der Gestaltung der Fassaden kommt der städtebauliche Entwurfsgedanke zum Ausdruck: Die dreigeschossigen Gebäudeteile entlang der Wittstraße, die die Ränder des Komplexes fassen, sind als massive Lochfassaden ausgebildet. Das hell geschlämmte Sichtmauerwerk nimmt Bezug auf die historischen Bauten Landshuts, die mit ihren Backsteinwänden die Stadtsilhuette prägen. Gleichzeitig sorgt die helle Farbgebung, für eine gestalterische Einheit mit den Putzfassaden des historischen Bernlocher-Komplexes. An die herausgehobene Gestaltung des historischen Sockelgeschosses im Bestand wird angeknüpft, indem auch in den neuen Bereichen die Sockelzone besonders gestaltet wird. Dies geschieht durch eine versetzte Anordnung einzelner Mauerwerksschichten, sodass eine profilierte Gestaltung auf Straßenebene entsteht. Die unter dem zweigeschossigen Dach zusammengefassten Bereiche wie Foyer und die große Probebühne sind verglast und schaffen so einen fließenden Übergang zwischen Innen- und Außenraum.
Klima- und Energiekonzept
Das Klima- und Energiekonzept des Gebäudes senkt durch eine optimierte Gebäudehülle der Neubauten und effiziente Raumklimakonditionierungssystemen den Energiebedarf und schafft gleichzeitig optimierten Komfort für die Nutzer.
Raumklimakonzept Theatersäle und Bühnen
Die bedarfsgerechte Lüftung für die neuen Theaterbühnen und Zuschauerbereiche erfolgt nach dem Quellluftprinzip über einen Druckboden unterhalb des Gestühls mit Abluftabsaugung oben und Ausnutzung der thermischen Luftschichtung im Raum. Die Frischluft wird aus dem Plenum unter den Sitzreihen mit niedrigen Geschwindigkeiten zugfrei eingebracht. Durch diese bodennah eingebrachte Quellluft wird eine thermische Schichtung der Raumluft im großen Luftvolumen erreicht und die Wärmelasten der Personen sowie des Kunstlichtes effizient abgeführt. Dieses Lüftungsprinzip führt thermischen Wärmelasten direkt nach oben ab und gewährleistet so optimale Luftqualität und thermischen Komfort.
Für den historischen Theaterraum wird ein ähnliches Lüftungsprinzip vorgeschlagen: da hier aufgrund der historischen Bausubstanz keine Möglichkeit besteht, unterhalb des Gestühls ein Plenum bzw. Lüftungsauslässe auszubilden, wird eine Versorgung über Einbringung von Frischluft mittels Wandauslässen durch Perforierung von Wandbereichen auf beiden Seiten des Zuschauerraumes vorgeschlagen. Die Zuluftkanalführung kann damit hinter den Wänden des Saales erfolgen und die Ausbreitung der temperierten Frischluft von den Auslässen mit geringen Geschwindigkeiten am Boden des Raumes. Die Raumgeometrie lässt eine zugfreie Frischluftversorgung und damit auch Raumkonditionierung als aussichtsreich erscheinen. Die Abluftführung erfolgt frei über die im Dachbereich vorhandenen Lüftungsklappen, die eine freie Abströmung gewährleisten und falls möglich sogar durch entsprechend zusätzliche, zu integrierende Abluftwärmewärmetauscher eine Rückgewinnung von Abwärme aus der Abluft erlauben. Die im Untergeschoss positionierten Lüftungsgeräte sind mit einer hocheffizienten Wärmerückgewinnung ausgestattet. Zur Steigerung des sommerlichen Komforts wird die Frischluft durch indirekte adiabate Abluftbefeuchtung ohne Einsatz mechanischer Kälte auf komfortable Zulufttemperaturen im Sommer abgekühlt. In den Foyerbereichen wird eine Fußbodenaktivierung zusammen mit Quellluftversorgung eingesetzt, die über Strahlungswärme bzw. direkte Abfuhr von solaren Wärmelasten im Sommer komfortables Raumklima mit geringem Energieeinsatz für Raumkonditionierung kombiniert.
Das entwickelte Raumklimakonzept ist nachhaltig und integraler Bestandteil des architektonischen Konzepts. Durch die gewählten Maßnahmen wird energetisch optimiert ein hohes Maß an Komfort für die Nutzer erreicht sowie ein Weg aufgezeigt, auch die Aufenthaltsqualität im historischen Bestand soweit wie möglich zu verbessern.