Info
R

Robert Rechenauer Architekten

Hans-Sachs-Straße 6  80469 München  Telefon 089 236856‑0
info@rechenauer-architekten.de
1 ⁄ 15 2 ⁄ 15 3 ⁄ 15 4 ⁄ 15 5 ⁄ 15 6 ⁄ 15 7 ⁄ 15 8 ⁄ 15 9 ⁄ 15 10 ⁄ 15 11 ⁄ 15 12 ⁄ 15 13 ⁄ 15 14 ⁄ 15 15 ⁄ 15

Modernisierung und Umbau Theresien-Gymnasium
Kaiser-Ludwig-Platz, München

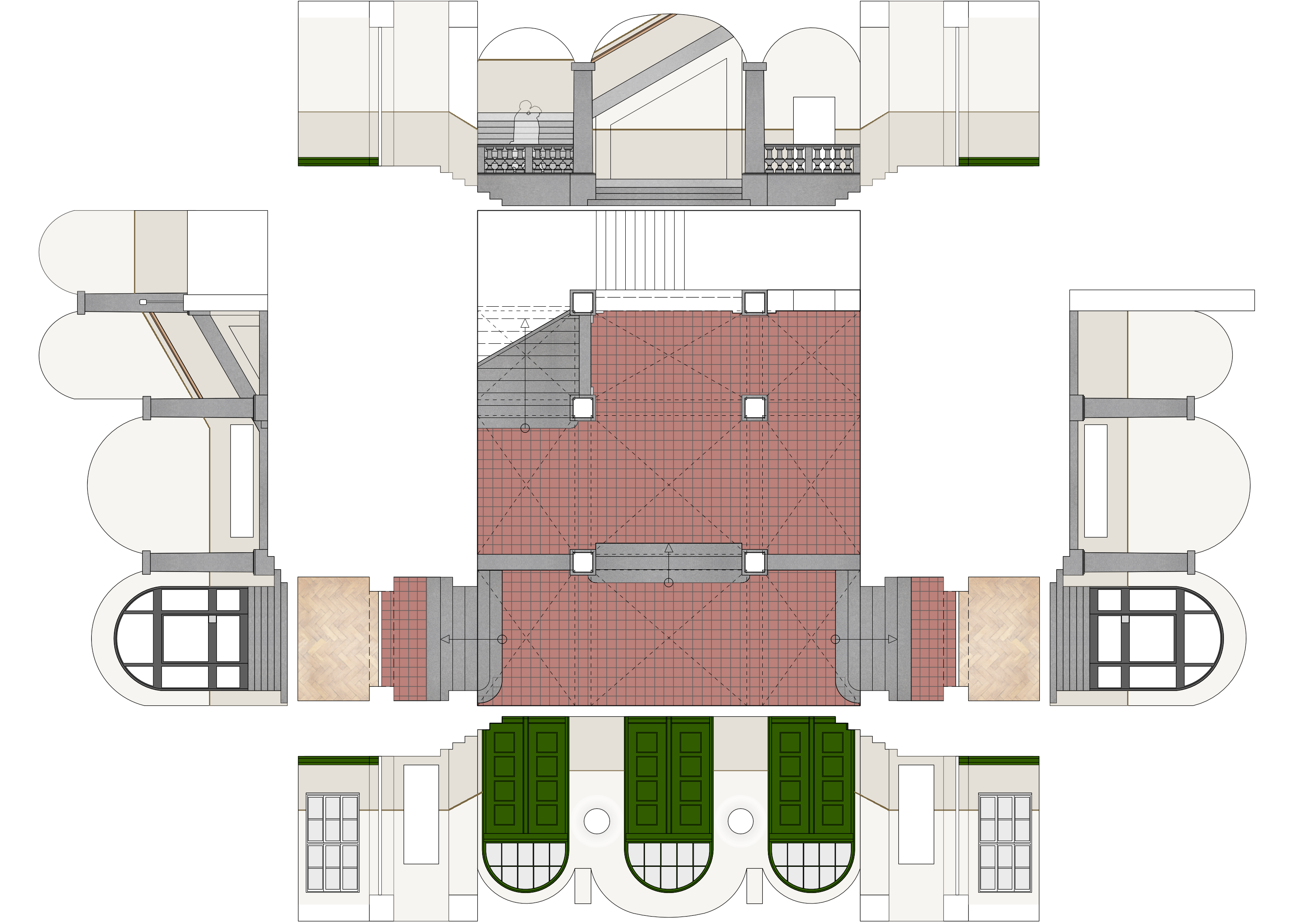
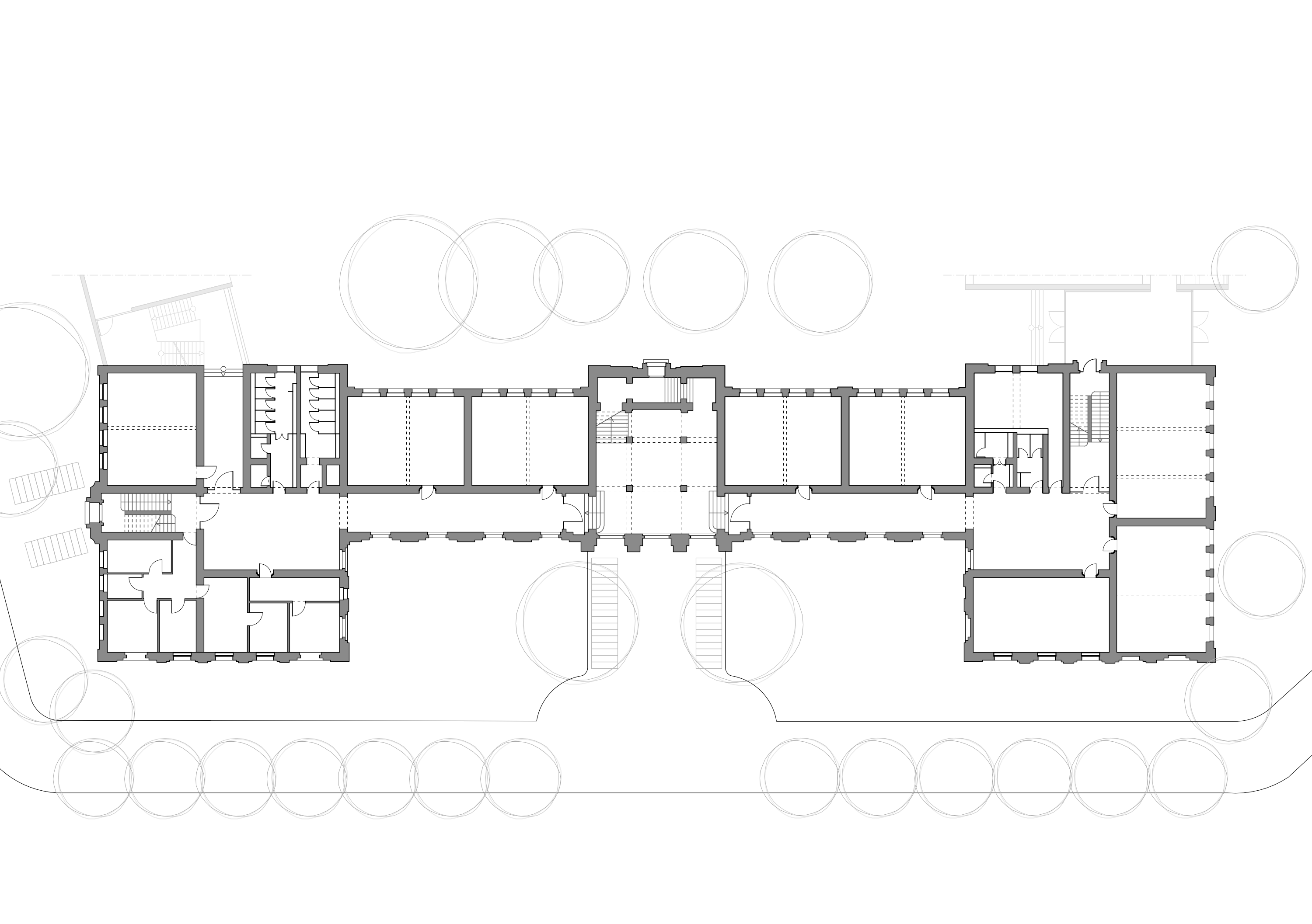
Die Schule, die von 1895 bis 1897 nach den Plänen von Benno Grünewald und Emanuel von Seidl errichtet wurde, ist eines der ältesten Gymnasien in München. Nahezu unbeschadet hat es den Zweiten Weltkireg überstanden. Der denkmalgeschütze Hauptbau wurde in verschiedenen Bauabschnitten saniert und umgebaut.

Die Realisiserung erfolgte im laufenden Betrieb.

+

Gebäudedaten
WC-Sanierung und Errichtung von Besprechungs- und Lagerräumen
Leistungsphasen 2 - 9
2015  Planungsbeginn
2016  Ausführung

Akustiksanierung der Klassenräume
Planung Flucht- und Rettungswege
Leistungsphasen 3 - 9
2016  Planungsbeginn
2017  Baubeginn
2018  Fertigstellung

Farbkonzept Flurbereiche
2019  Fertigstellung

Bauherr
Landeshauptstadt München
Baureferat
www.muenchen.de  

Nutzer
Theresiengymnasium
www.thg.musin.de   

Entwurf und Planung
Robert Rechenauer Architekt BDA

Mitarbeit
Natalie Deimel (Projektleitung)
Caroline Geiger
Iuliia Aulkina

Fotografie
Andrew Phelps