Info
R

Robert Rechenauer Architekten

Hans-Sachs-Straße 6  80469 München  Telefon 089 236856‑0
info@rechenauer-architekten.de
1 ⁄ 18 2 ⁄ 18 3 ⁄ 18 4 ⁄ 18 5 ⁄ 18 6 ⁄ 18 7 ⁄ 18 8 ⁄ 18 9 ⁄ 18 10 ⁄ 18 11 ⁄ 18 12 ⁄ 18 13 ⁄ 18 14 ⁄ 18 15 ⁄ 18 16 ⁄ 18 17 ⁄ 18 18 ⁄ 18

Translation Simeonskirche – Umbau Café Nashorn
Augustinum München-Neufriedenheim

Aufgrund der rückläufigen Zahl der Gemeinde­mit­glieder musste die Evangelische Landes­kirche die 1964 geweihte Simeonskirche veräußern. Die Kirche wurde jedoch nicht aufgegeben, sondern im Auftrag des Augustinums in einen benachbarten Raumkomplex des Wohnstifts München-Neufriedenheim transloziert.

+

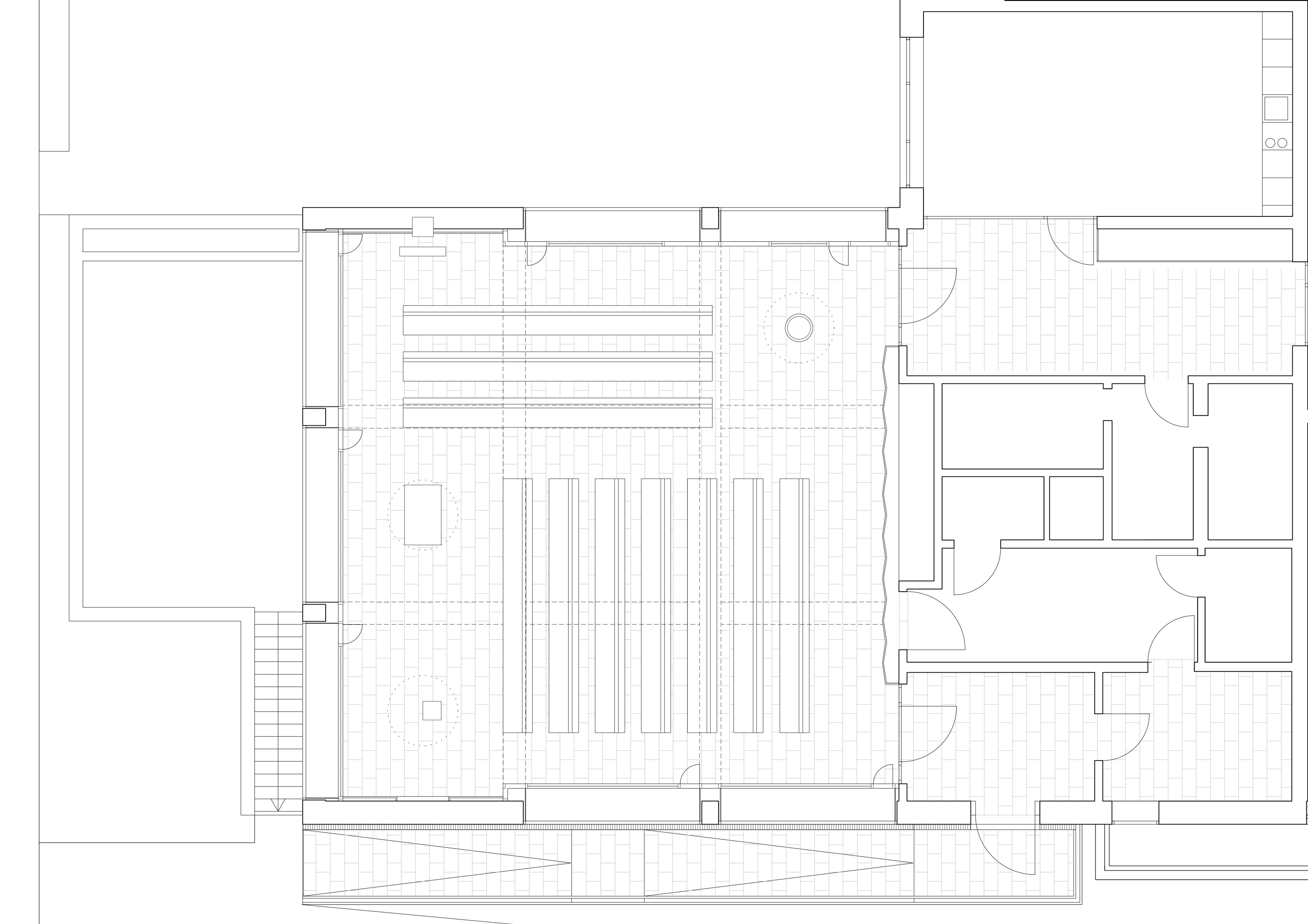
Bei dem Gebäude handelte sich um das ehemalige Café Nashorn, das für die Ge­meinde und Seel­sorge des Augus­tinums zur neuen Simeons­kirche umgebaut wurde. Das Café befand sich in einem eingeschossigen Flach­bau in na­he­zu frei­er Lage im Süd­os­ten der Lie­gen­schaft des Augus­ti­nums. Die städte­bau­liche Si­tuation, die gegebene Ku­ba­tur und der klare Raum­plan des vor­han­de­nen Baus waren für die vor­ge­se­he­ne Um­nutzung prä­des­ti­niert. Der direkte Zu­gang vom Wohn­stift wurde um einen öf­fent­li­chen, barrierefreien Ein­gang an der Süd­seite des Bau­werks ergänzt. Der dunkle Farb­­ton der Fassade gab dem ursprünglich pro­fa­nen Bau eine zu­rück­hal­ten­de Nob­lesse und ver­schaffte der neuen Funktion als Kir­chen­bau eine ei­gen­stän­dige Bedeutung.

Mit dem Umzug von der alten in die neue Simeonskirche ging faktisch eine Ver­klei­ne­rung des Kir­chen­rau­mes ein­her; die Ge­mein­de ging in eine Di­as­po­ra. Das Wich­tig­ste und Schön­­s­te des alten Kir­chen­rau­mes nahm sie mit: die far­ben­präch­ti­gen von Heiner Schuhmann ent­wor­fe­nen und den Werk­­stät­­ten Gustav van Treek ge­fer­tig­ten Bunt­glas­fenster, die in einer Stahl­kon­struk­tion hin­ter den bestehenden Fensteröffnungen integriert wur­den. Sie er­zäh­len in der neuen Kirche die tra­dier­te Heilsgeschichte weiter und ga­ran­tie­ren so der Ge­meind­e und dem Augustinum den Fort­be­stand der Simeons­­­kirche. Das na­tür­liche Son­nen­licht bringt den Raum zum Strahlen, Tages- und Jahres­zeiten ent­falten da­bei ihre eigene Wirkung. Bei Nacht sorgt ein Be­­leuch­­tungs­­kon­­zept da­­für, dass die Fens­ter im In­nen- oder Aus­sen­raum leuchten.

Der bestehende quadratische Grundriss wurde unter Ein­be­zie­hung der alten Trag­struk­tur in 3 x 3 = 9 Felder auf­ge­teilt. Die Be­rei­che definieren Orte im Raum, denen eine liturgische Bedeutung zu­ge­wie­sen ist. Über Al­tar, Am­bo und Tauf­becken sind Ober­­lich­ter an­geordnet, welche die Prin­zi­­pal­­stücke ins Licht stellen. Bänke aus Eichenholz sind zu Ein­hei­ten zu­sam­men­ge­fasst. Teil­weise las­sen sie sich in Ein­zel­stühle zerlegen, so dass im Raum auch kleinere Sitz­grup­pen gebildet wer­den können.

Die Simeonskirche wurde am Pfingst­sonntag 2015 neu ge­weiht.
Die Kirche wird von Protestanten und Katholiken glei­­cher­­ma­­ßen genutzt.

 

Gebäudedaten

Umbau und Generalsanierung
Leistungsphasen 2 - 5, 6 - 8 teilweise
2013  Planungsbeginn
2014  Baubeginn
2015  Fertigstellung Kirche
2019  Einbau Orgel
2021  Errichtung Glockenturm

Presse 

Kirchengebäude und ihre Zukunft 

Bundesweiter Wettbewerb Wüstenrot Stiftung
Gestaltungspreis 2016, Engere Wahl  

Bauherr
Augustinum
www.augustinum.de

Nutzer
Simeonskirche
www.simeonskirche.de 

Entwurf und Planung
Robert Rechenauer Architekt BDA

Mitarbeit
Caroline Geiger
Sascha Löffler

Fotografie
Stefan Müller-Naumann